Aquamarijnstraat 457 9743PL Groningen

Aquamarijnstraat 457
9743PL Groningen, Vinkhuizen-Noord

€825,74

Per maand

Interesse in dit type woning?

Ontvang direct bericht als er nieuwe woningen beschikbaar komen die bij uw woonwensen passen.

Meld je aan voor woningalerts

Gratis en vrijblijvend

Historische informatie

Deze huurwoning was beschikbaar voor reacties van 18-01-2026 tot 23-01-2026. Deze woning is niet meer beschikbaar voor nieuwe reacties.

🏠

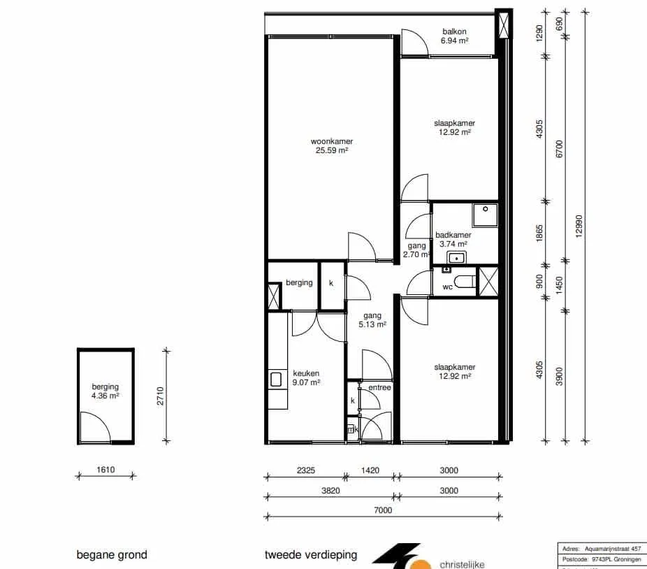
64.24m²

Woonoppervlakte

🛏️

3

Kamers

Leegstand

Status

🌟

C

Energielabel

Let op: we verhuren deze woning ALLEEN AAN 3 STUDENTEN onder de 28 jaar. Je mag alleen reageren als je met 3 studenten op Woningnet staat ingeschreven. Alle reacties met minder dan 3 personen zullen automatisch worden afgewezen. Een bewijs van DUO of een bewijs van een voltijdstudie inschrijving van de opleiding is vereist. 

Leuke studentenwoning met 3 aparte kamers. De woning is geschikt voor 3 studenten. Het appartement bevindt zich op de 2e woonlaag en beschikt over een balkon. Je woont in de wijk Vinkhuizen, dichtbij Zernike, winkels en het openbaar vervoer. In ruim een kwartier fiets je naar het centrum van de stad. 

Vanaf de ingangsdatum kan er in de woning alleen elektrisch gekookt worden. Je bent zelf verantwoordelijk voor het aanschaffen van een geschikte kookplaat en pannen. De kookplaat mag een maximaal vermogen van 7000 watt (7 kW) hebben. 
 
De nieuwe huuringangsdatum is 12 februari 2026.

📋 Specificaties

Type

Woonruimte

Soort woning

Galerijflat

Verdieping

2

Lift

✅ Ja

🏠 Vertrekken

Berging 1x (4.36m²)
Slaapkamer 2x (25.84m²)
Woonkamer 1x (25.59m²)

💰 Prijsopbouw

Niet subsidiabele servicekosten €61,60

📍 Locatie

Kaart laden...

🚉

OV

5 min lopen naar station

🏬

Winkels

2 min lopen

🏫

Scholen

Meerdere binnen 1km

🌳

Park

10 min lopen

✅ Selectiecriteria

Uw inkomen is passend
Uw inkomen is niet hoger dan € 51537
Uw inkomen is niet hoger dan € 56910
tot 28 jaar
18 jaar
Woningzoekenden met een Proefwonenurgentie of Woonkansurgentie kunnen geen reactie plaatsen
Meld je aan