Van Zeggelenplein 130 2032KG Haarlem

Van Zeggelenplein 130
2032KG Haarlem, Van Zeggelenbuurt

€644,86

Per maand

Interesse in dit type woning?

Ontvang direct bericht als er nieuwe woningen beschikbaar komen die bij uw woonwensen passen.

Meld je aan voor woningalerts

Gratis en vrijblijvend

Historische informatie

Deze huurwoning was beschikbaar voor reacties van 06-01-2026 tot 12-01-2026. Deze woning is niet meer beschikbaar voor nieuwe reacties.

🏠

52.98m²

Woonoppervlakte

🛏️

2

Kamers

Leegstand

Status

🌟

D

Energielabel

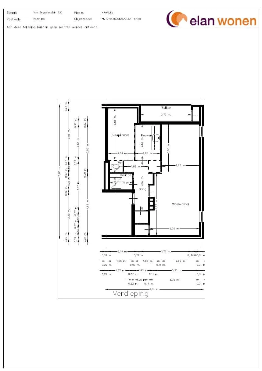
2-kamer appartement op de tweede verdieping.  
 
Woning  
• balkon op het noorden
• halfopen keuken 
• elektrisch koken 
• toilet apart van badkamer  
• externe berging op begane grond met zijkanten van gaas
• wasmachineaansluiting in keuken 

Bijzonderheden
• geen lift 
de algemene entree complex is afgesloten en voorzien van een intercom 

Bezichtiging  
De eerste 15 kandidaten worden uitgenodigd voor een bezichtiging op maandag 19 januari om 11.00 uur.  
 
Als u geen uitnodiging heeft ontvangen, dan kunt u niet komen bezichtigen.  
De bezichtigingsdatum is onder voorbehoud; u krijgt een e-mail als de datum wijzigt.  
  
Wij vragen u de documenten pas na de bezichtiging van u en uw eventuele partner via deze link te uploaden: Acceptatieformulier sociale huurwoning. U dient dit de eerstvolgende werkdag na de bezichtiging vóór 12.00 uur te doen. Dit vragen wij aan alle kandidaten die bij de bezichtiging aanwezig waren, ongeacht het rangnummer. Hebben wij geen of niet alle documenten ontvangen, komt uw kandidaatstelling te vervallen. 
 
Staat van de woning  
Elan Wonen levert iedere woning op met basiskwaliteit: schoon, heel en veilig.   

Wat moet u aan de woning doen?  
Houdt er rekening mee dat u zelf nog het een en ander moet doen om de woning naar uw smaak te maken. Denk hierbij aan het leggen van ondervloeren en vloeren (minimaal 10cha decibel reducerend), schilderen en behangen van de wanden en plafonds. 

Verzamel alvast uw gegevens 
 
Krijgt u een uitnodiging voor bezichtiging en wilt u komen kijken? Verzamel dan alvast uw gegevens. Want als u de woning komt bekijken en daarna laat weten dat u deze wilt huren, moet u uw complete gegevens aanleveren 2 werkdagen na de bezichtiging. Ook als u niet kandidaat nummer 1 bent, levert u de gevraagde documenten in!   
 
Kijk in de voorwaardentekst wat u moet aanleveren.  
Levert u uw gegevens niet (volledig) op tijd aan? Dan vervalt uw kandidaatstelling.      

Tot slot
 
De oplevering van de woning kan afwijken van de advertentietekst, de plattegrond, de foto’s en de bezichtiging in verband met eventuele werkzaamheden.  

Aan deze advertentie kunt u geen rechten ontlenen.  

📋 Specificaties

Type

Woonruimte

Soort woning

Portiekflat

Verdieping

2

Lift

❌ Nee

🏠 Vertrekken

Badkamer 1x (2m²)
Berging 1x (4m²)
Keuken 1x (6.8m²)
Slaapkamer 1x (8m²)
Woonkamer 1x (27m²)

💰 Prijsopbouw

Electriciteit €0,00
Subsidiabele servicekosten €11,05
Niet subsidiabele servicekosten €37,37

📍 Locatie

Kaart laden...

🚉

OV

5 min lopen naar station

🏬

Winkels

2 min lopen

🏫

Scholen

Meerdere binnen 1km

🌳

Park

10 min lopen

✅ Selectiecriteria

Voor de inkomenseisen die voor deze woning gelden verwijzen wij u naar de pagina Passend toewijzen
Meld je aan