Diakenhuisweg 148 2033AS Haarlem

Diakenhuisweg 148
2033AS Haarlem, Zuiderpolder-noord

€716,90

Per maand

Interesse in dit type woning?

Ontvang direct bericht als er nieuwe woningen beschikbaar komen die bij uw woonwensen passen.

Meld je aan voor woningalerts

Gratis en vrijblijvend

Historische informatie

Deze huurwoning was beschikbaar voor reacties van 07-01-2026 tot 12-01-2026. Deze woning is niet meer beschikbaar voor nieuwe reacties.

🏠

67.24m²

Woonoppervlakte

🛏️

3

Kamers

Leegstand

Status

🌟

B

Energielabel

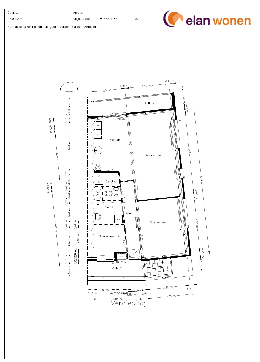
3-kamer appartement op de eerste verdieping.  
 
Woning  
• woning gelegen aan het eind van de galerij
• balkon op het zuidoosten
• open keuken 
• elektrisch koken 
• toilet apart van badkamer  
• externe berging op begane grond 
• inpandige berging
• wasmachineaansluiting in badkamer

Bijzonderheden
• lift aanwezig
• de algemene entree complex is afgesloten en voorzien van een intercom 

Bezichtiging  
De eerste 15 kandidaten worden uitgenodigd voor een bezichtiging op donderdag 15 januari om 14.00 uur.  
 
Als u geen uitnodiging heeft ontvangen, dan kunt u niet komen bezichtigen.  
De bezichtigingsdatum is onder voorbehoud; u krijgt een e-mail als de datum wijzigt.  
  
Wij vragen u de documenten pas na de bezichtiging van u en uw eventuele partner via deze link te uploaden: Acceptatieformulier sociale huurwoning. U dient dit de tweede werkdag na de bezichtiging vóór 12.00 uur te doen. Dit vragen wij aan alle kandidaten die bij de bezichtiging aanwezig waren, ongeacht het rangnummer. Hebben wij geen of niet alle documenten ontvangen, komt uw kandidaatstelling te vervallen. 
 
Staat van de woning  
Elan Wonen levert iedere woning op met basiskwaliteit: schoon, heel en veilig.   

Wat moet u aan de woning doen?  
Houdt er rekening mee dat u zelf nog het een en ander moet doen om de woning naar uw smaak te maken. Denk hierbij aan het leggen van ondervloeren en vloeren (minimaal 10cha decibel reducerend), schilderen en behangen van de wanden en plafonds. 

Zelf Aangebrachte Voorzieningen (ZAV) 
- beugels in badkamer en toilet

Zelf Aangebrachte Voorzieningen zijn zaken die door de vorige huurder zijn aangebracht aan de woning. Deze zaken zijn ooit door een bewoner toegevoegd aan de woning. Elan Wonen heeft gecontroleerd of deze zaken technisch in orde zijn. Wanneer u de woning gaat huren, accepteert u ook deze aanpassingen. U tekent hiervoor op een extra document dat hoort bij uw huurovereenkomst. Na ondertekening bent u zelf verantwoordelijk voor het onderhoud ervan. Alleen als wij dit duidelijk aangeven, zorgt Elan Wonen voor het onderhoud. Als de aanpassing kapot gaat, wordt deze vervangen door een standaarduitvoering. Als u gaat verhuizen, dan kunnen wij u vragen om de voorziening te verwijderen.  

Verzamel alvast uw gegevens  
 
Krijgt u een uitnodiging voor bezichtiging en wilt u komen kijken? Verzamel dan alvast uw gegevens. Want als u de woning komt bekijken en daarna laat weten dat u deze wilt huren, moet u uw complete gegevens aanleveren. Ook als u niet kandidaat nummer 1 bent, levert u de gevraagde documenten in!   
 
Kijk in de voorwaardentekst wat u moet aanleveren.  
Levert u uw gegevens niet (volledig) op tijd aan? Dan vervalt uw kandidaatstelling.      

Tot slot 
 
De oplevering van de woning kan afwijken van de advertentietekst, de plattegrond, de foto’s en de bezichtiging in verband met eventuele werkzaamheden.  

Aan deze advertentie kunt u geen rechten ontlenen.  

📋 Specificaties

Type

Woonruimte

Soort woning

Galerijflat

Verdieping

1

Lift

✅ Ja

🏠 Vertrekken

Badkamer 1x (3.57m²)
Berging 1x (4.5m²)
Slaapkamer 2x (18.7m²)
Keuken 1x (11.5m²)
Woonkamer 1x (20.5m²)

💰 Prijsopbouw

Electriciteit €0,00
Niet subsidiabele servicekosten €46,37

📍 Locatie

Kaart laden...

🚉

OV

5 min lopen naar station

🏬

Winkels

2 min lopen

🏫

Scholen

Meerdere binnen 1km

🌳

Park

10 min lopen

✅ Selectiecriteria

Voor de inkomenseisen die voor deze woning gelden verwijzen wij u naar de pagina Passend toewijzen
Meld je aan