Terug Van Linschotenlaan 299
Van Linschotenlaan 299 1212DV Hilversum

Van Linschotenlaan 299
1212DV Hilversum, Van Riebeeckkwartier

€757,09

Per maand

Interesse in dit type woning?

Ontvang direct bericht als er nieuwe woningen beschikbaar komen die bij uw woonwensen passen.

Meld je aan voor woningalerts

Gratis en vrijblijvend

Historische informatie

Deze huurwoning was beschikbaar voor reacties van 05-02-2026 tot 10-02-2026. Deze woning is niet meer beschikbaar voor nieuwe reacties.

🏠

52.15m²

Woonoppervlakte

🛏️

2

Kamers

Leegstand

Status

Dit senioren appartement aan de Van Linschotenlaan ligt vlakbij het ziekenhuis Tergooi. Daardoor is het makkelijk te bereiken met de auto en met het openbaar vervoer (dichtbij een bushalte en treinstation Hilversum Sportpark). In de omgeving zijn veel mooie fiets- en wandelroutes waar je van kunt genieten van de natuur. Landgoed Monnikenberg ligt bijvoorbeeld om de hoek.
Op loopafstand van Ter Gooi ziekenhuis en verschillende winkels (Riebeeckgalerij) voor de dagelijkse boodschappen. Op de fiets ben je binnen 10 minuten in het bruisende centrum van Hilversum.

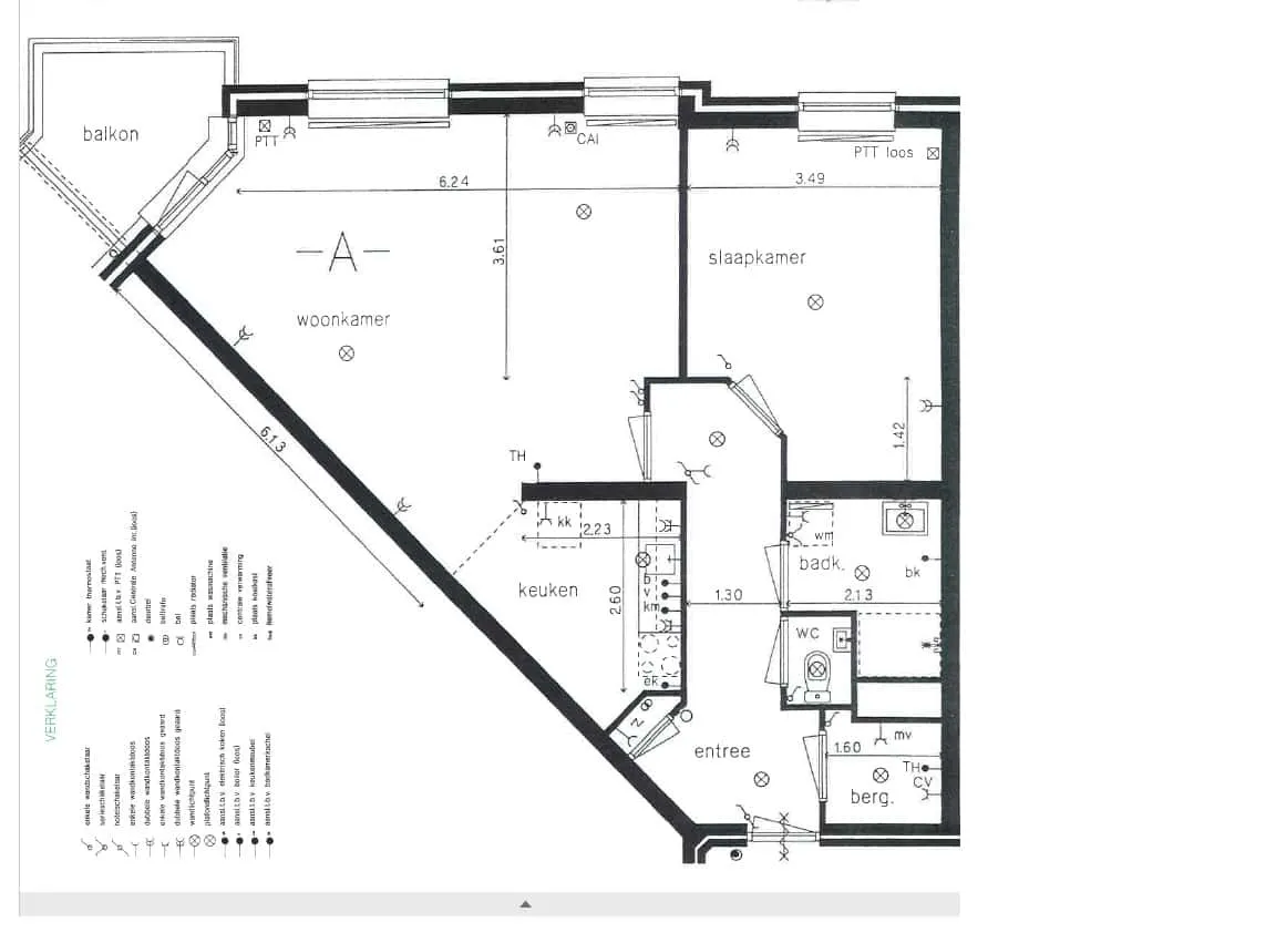
Indeling: zie plattegrond en het appartement heeft een berging in de onderbouw.

Bij de gelabelde seniorenwoningen geven wij geen toestemming voor bewoning met inwonende kinderen.

📋 Specificaties

Type

Woonruimte

Soort woning

Corridorflat

Verdieping

5

Lift

✅ Ja

🏠 Vertrekken

Badkamer 1x (4.68m²)
Balkon 1x (8m²)
Slaapkamer 1x (13.73m²)
Woonkamer 1x (38.42m²)

💰 Prijsopbouw

Niet subsidiabele servicekosten €44,07

📍 Locatie

Kaart laden...

🚉

OV

5 min lopen naar station

🏬

Winkels

2 min lopen

🏫

Scholen

Meerdere binnen 1km

🌳

Park

10 min lopen

✅ Selectiecriteria

maximaal € 51537 (muv urgenten)
maximaal € 56910 (muv urgenten)
55 jaar
Meld je aan