Gooilandweg 168 -A 1271LB Huizen

Gooilandweg 168 -A
1271LB Huizen, De Zuid

€716,74

Per maand

Interesse in dit type woning?

Ontvang direct bericht als er nieuwe woningen beschikbaar komen die bij uw woonwensen passen.

Meld je aan voor woningalerts

Gratis en vrijblijvend

Historische informatie

Deze huurwoning was beschikbaar voor reacties van 25-03-2026 tot 31-03-2026. Deze woning is niet meer beschikbaar voor nieuwe reacties.

🏠

30.57m²

Woonoppervlakte

🛏️

2

Kamers

Leegstand

Status

🌟

D

Energielabel

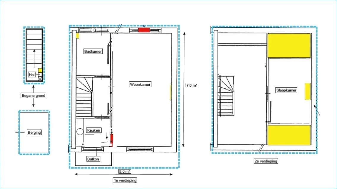
2-kamer duplex met op de eerste etage de woonkamer, keuken en badkamer met toilet. De slaapkamer ligt op de zolderverdieping en is te bereiken met een vaste trap. Via een deur in de keuken kom je op het balkon. Berging op de begane grond.

Achtertuin achter de tuin van de benedenburen. De kelder is te bereiken via een luik achter de voordeur.
Jongeren onder de 21 jaar hebben geen recht op huurtoeslag tenzij er een kind tot het huishouden behoort.

De huur is exclusief de huuraanpassing van de servicekosten per 1 juli 2026

📋 Specificaties

Type

Woonruimte

Soort woning

Bovenwoning

Verdieping

2

Lift

❌ Nee

🏠 Vertrekken

Keuken 1x (4.32m²)
Slaapkamer 1x (7.38m²)
Woonkamer 1x (23.19m²)

💰 Prijsopbouw

Niet subsidiabele servicekosten €3,72

📍 Locatie

Kaart laden...

🚉

OV

5 min lopen naar station

🏬

Winkels

2 min lopen

🏫

Scholen

Meerdere binnen 1km

🌳

Park

10 min lopen

✅ Selectiecriteria

maximaal € 51537 (muv urgenten)
maximaal € 56910 (muv urgenten)
2
jonger dan 28 jaar
Meld je aan