
Grahamstraat 86
1973RC IJmuiden, Verzetsheldenbuurt
€743,20
Per maand
Interesse in dit type woning?
Ontvang direct bericht als er nieuwe woningen beschikbaar komen die bij uw woonwensen passen.
Meld je aan voor woningalertsGratis en vrijblijvend
Historische informatie
Deze huurwoning was beschikbaar voor reacties van 30-09-2025 tot 06-10-2025. Deze woning is niet meer beschikbaar voor nieuwe reacties.
47.16m²
Woonoppervlakte
3
Kamers
Leegstand
Status
B
Energielabel
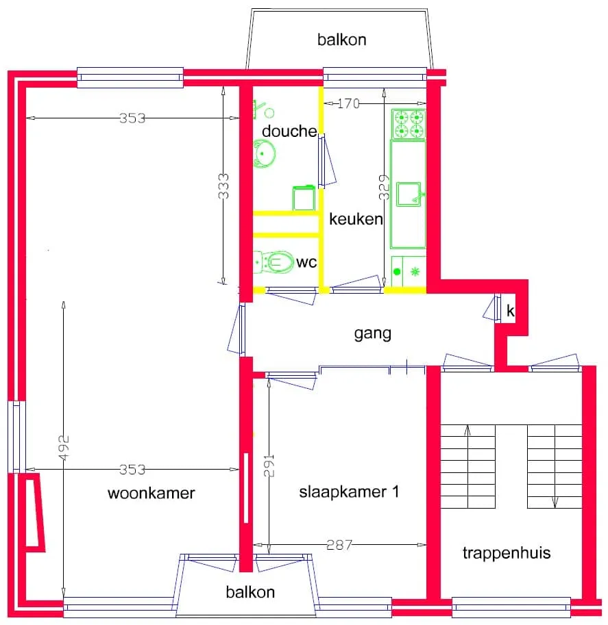
Omschrijving
Aangeboden door Woningbedrijf VelsenWoning
- 2-kamerwoning
- 1 slaapkamer
- Portiekflat
- Gesloten keuken
- Standaard keukenblok 180cm
- Koken op gas
- CV-ketel
- Natuurlijke ventilatie
- Wasmachine aansluiting in de badkamer
- Aparte toiletruimte
- Dubbel glas & enkel glas
- Externe berging
In de buurt
- Openbaar vervoer op loopafstand
- Winkels
- Supermarkt
Bezichtiging
De eerste 10 kandidaten ontvangen een uitnodiging voor de groepsbezichtiging.
De groepsbezichtiging vindt plaats op woensdag 15 oktober om 11:00 uur.
Aangeboden overnames
- Er zijn geen overnames. De woning wordt kaal opgeleverd.
📋 Specificaties
Type
Woonruimte
Soort woning
Portiekwoning
Verdieping
2
Lift
❌ Nee
🏠 Vertrekken
💰 Prijsopbouw
📍 Locatie
OV
5 min lopen naar station
Winkels
2 min lopen
Scholen
Meerdere binnen 1km
Park
10 min lopen