Terug Prins Willem Alexanderdijk 9
Prins Willem Alexanderdijk 9 3402PJ IJsselstein

Prins Willem Alexanderdijk 9
3402PJ IJsselstein, Oranjekwartier

€742,92

Per maand

Interesse in dit type woning?

Ontvang direct bericht als er nieuwe woningen beschikbaar komen die bij uw woonwensen passen.

Meld je aan voor woningalerts

Gratis en vrijblijvend

Historische informatie

Deze huurwoning was beschikbaar voor reacties van 19-01-2026 tot 26-01-2026. Deze woning is niet meer beschikbaar voor nieuwe reacties.

🏠

54.88m²

Woonoppervlakte

🛏️

3

Kamers

Leegstand

Status

🌟

A

Energielabel

De portiekflat bevindt zich in IJsselstein in de wijk Oranjekwartier. In het historische stadscentrum van IJsselstein vind u karakteristieke architectuur en een levendige sfeer. U heeft toegang tot een breed scala aan winkels, restaurants en cafés, waardoor u volop keuze hebt voor uw dagelijkse behoeften en recreatie. Met uitstekende verbindingen naar omliggende steden, zoals Utrecht en Amsterdam, is IJsselstein een gunstige locatie.  

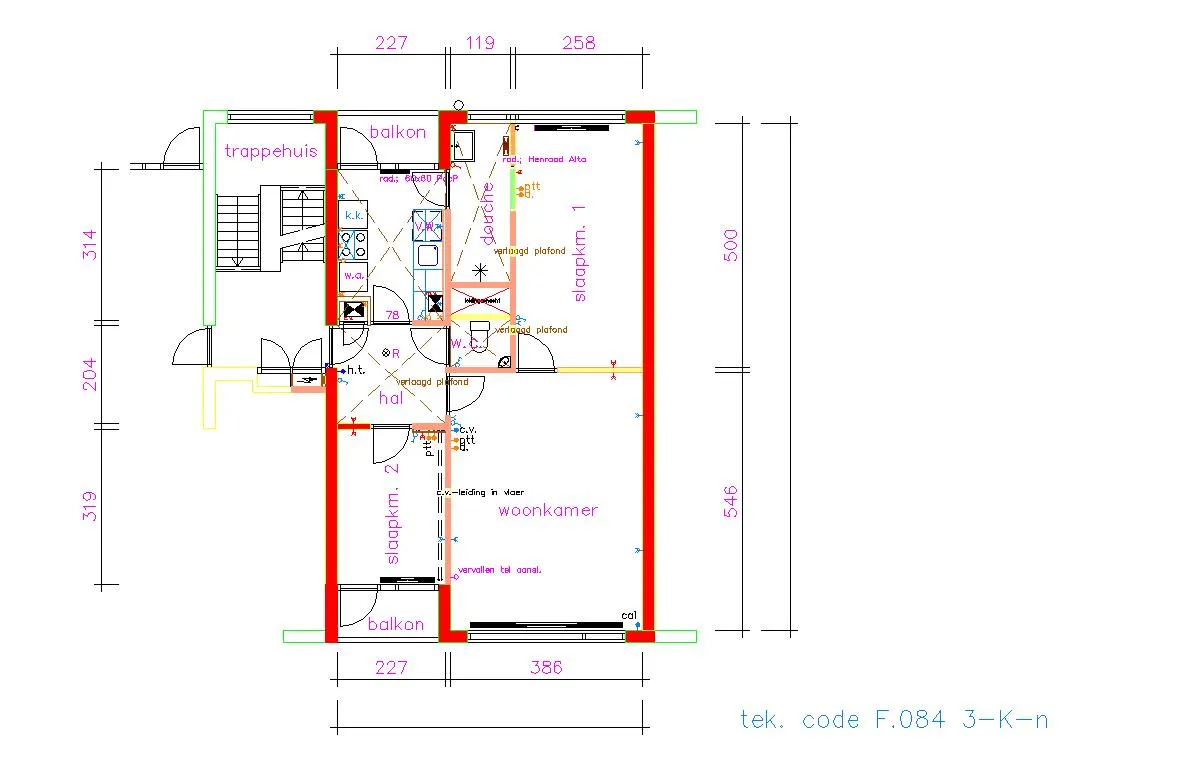
Indeling 

Het complex heeft een afgesloten algemene toegang met videofoon. De woning ligt op de tweede etage. Er is geen lift aanwezig in het complex. 

U komt de woning binnen in de hal. Vanuit de hal heeft u toegang tot de afgesloten keuken, de slaapkamer, het toilet en de woonkamer. Via de woonkamer bereikt u de tweede slaapkamer. De keuken geeft toegang tot de badkamer en het balkon aan de voorzijde van de woning. Vanuit de woonkamer heeft u toegang tot de tweede slaapkamer. 

Bijzonderheden op een rij:

  • Koken op gas;
  • Wasmachine aansluiting in de keuken;
  • Aparte berging;
  • Balkon op het Noord-Oosten;
  • Woning wordt leeg opgeleverd, geen overnames;
  • Voorzieningen in de buurt: nabij winkelcentrum en rustige weg;

Heeft u interesse en wilt u de woning bezichtigen?

  • De eerste 7 geselecteerde kandidaten ontvangen een mailbericht van WoningNet om de woning te gaan bezichtigen.
  • U kunt de woning bekijken met maximaal 2 personen
  • Houdt u er dan rekening mee dat er een bezichtiging plaats zal vinden op 29 januari 2026.
  • Let op: de woning is onder voorbehoud per genoemde datum beschikbaar
  • U kunt nog tot 1 dag voor bezichtiging bericht krijgen dat u de volgende dag hierbij aanwezig dient te zijn.
  • Als u niet zelf naar de bezichtiging kunt komen, kunt u iemand anders machtigen. Geef via verhuur@cazaswonen.nl door wie namens u de woning komt bezichtigen.
  • Bij de bezichtiging is een verhuurmakelaar aanwezig.

📋 Specificaties

Type

Woonruimte

Soort woning

Portiekflat

Verdieping

2

Lift

❌ Nee

🏠 Vertrekken

Berging 1x (6.5m²)
Keuken 1x (7.16m²)
Slaapkamer 2x (20.14m²)
Woonkamer 1x (21.08m²)

💰 Prijsopbouw

Subsidiabele servicekosten €0,00
Niet subsidiabele servicekosten €29,90

📍 Locatie

Kaart laden...

🚉

OV

5 min lopen naar station

🏬

Winkels

2 min lopen

🏫

Scholen

Meerdere binnen 1km

🌳

Park

10 min lopen

✅ Selectiecriteria

Je inkomen is niet hoger dan € 51537
Je inkomen is niet hoger dan € 56910
Meld je aan