Radioplein 28 3402VM IJsselstein

Radioplein 28
3402VM IJsselstein, IJsselveld-Oost

€996,64

Per maand

Interesse in dit type woning?

Ontvang direct bericht als er nieuwe woningen beschikbaar komen die bij uw woonwensen passen.

Meld je aan voor woningalerts

Gratis en vrijblijvend

Historische informatie

Deze huurwoning was beschikbaar voor reacties van 10-02-2026 tot 17-02-2026. Deze woning is niet meer beschikbaar voor nieuwe reacties.

🏠

84m²

Woonoppervlakte

🛏️

4

Kamers

Leegstand

Status

🌟

A

Energielabel

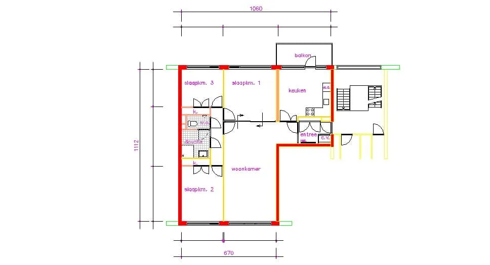
De woning is voorzien van een cv-combiketel. Tevens is er mechanische ventilatie aangebracht. De keuken is afgesloten en u kookt op gas of elektrisch. Het portiek is afgesloten en in de woning te openen via een intercomsysteem. Tevens is er een aparte (fietsen)berging aanwezig. Voor de deur is voldoende (gratis) parkeergelegenheid en zijn winkels, openbaar vervoer en scholen op loopafstand. 

De woning bevindt zich op de 3e etage en is via de lift te bereiken en heeft een afgesloten algemene toegang met videofoon. Wanneer u de woning binnen komt via de hal, heeft u vanuit hier toegang tot de woonkamer, de 2 slaapkamers en de badkamer. Via de keuken heeft u toegang tot het balkon, welke op het oosten ligt. 

Bijzonderheden op een rij:

  • Koken op gas en elektrisch ( elektrisch = 2 fase Perilex); 
  • Afgesloten keuken;
  • Zonnepanelen;
  • Wasmachine aansluiting in de washok;
  • Aparte berging; 
  • Voorzieningen nabije omgeving: winkelcentrum en school;
  • Geen overnames.

Heeft u interesse en wilt u de woning bezichtigen?

  • De eerste 7 geselecteerde kandidaten ontvangen een mailbericht van WoningNet om de woning te gaan bezichtigen.
  • U kunt de woning bekijken met maximaal 2 personen
  • Houdt u er dan rekening mee dat er een bezichtiging plaats zal vinden op 27 februari 2026.
  • Let op: de woning is onder voorbehoud per genoemde datum beschikbaar
  • U kunt nog tot 1 dag voor bezichtiging bericht krijgen dat u de volgende dag hierbij aanwezig dient te zijn.
  • Als u niet zelf naar de bezichtiging kunt komen, kunt u iemand anders machtigen. Geef via verhuur@cazaswonen.nl door wie namens u de woning komt bezichtigen.
  • Bij de bezichtiging is een verhuurmakelaar aanwezig.

📋 Specificaties

Type

Woonruimte

Soort woning

Portiekflat

Verdieping

3

Lift

✅ Ja

🏠 Vertrekken

Doucheruimte 1x (3m²)
Berging 1x (8m²)
Slaapkamer 3x (33m²)
Keuken 1x (13m²)
Woonkamer 1x (30m²)

💰 Prijsopbouw

Niet subsidiabele servicekosten €63,71

📍 Locatie

Kaart laden...

🚉

OV

5 min lopen naar station

🏬

Winkels

2 min lopen

🏫

Scholen

Meerdere binnen 1km

🌳

Park

10 min lopen

✅ Selectiecriteria

Je inkomen is niet hoger dan € 51537
Je inkomen is niet hoger dan € 56910
Er geldt een minimuminkomen
Meld je aan