Rijnstraat 4 G 4031KL Ingen

Rijnstraat 4 G
4031KL Ingen, Klinkenberg

€847,80

Per maand

Interesse in dit type woning?

Ontvang direct bericht als er nieuwe woningen beschikbaar komen die bij uw woonwensen passen.

Meld je aan voor woningalerts

Gratis en vrijblijvend

Historische informatie

Deze huurwoning was beschikbaar voor reacties van 06-03-2026 tot 16-03-2026. Deze woning is niet meer beschikbaar voor nieuwe reacties.

🏠

82m²

Woonoppervlakte

🛏️

3

Kamers

Leegstand

Status

Bent u op zoek naar een ideale woning in het hart van Ingen?
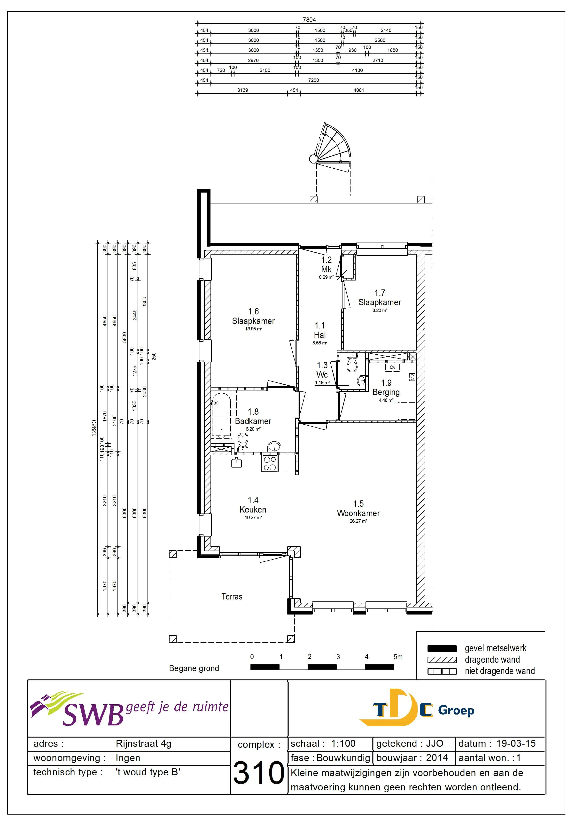
Dit appartement is gelegen in complex 't Woud aan de Rijnstraat 4G in Ingen. Het appartement is gelegen op de begane grond op een hoek.

Er is een lift aanwezig in het complex.

Indeling van de woning

  • Woonkamer: knusse woonkamer met veel lichtinval
  • Keuken: direct aansluitend op de woonkamer vindt u een open keuken met afzuigkap, geschikt voor elektrisch koken. Keukenvervanging mogelijk.
  • Slaapkamers: twee slaapkamers aanwezig
  • Badkamer: compacte badkamer
  • Buiten: aangrenzend aan de woonkamer zit het buitenplaatsje

Voorzieningen in de buurt

Ingen is een landelijk dorp in de gemeente Buren, midden tussen de fruitbomen. Neem je de pont over de Nederrijn dan sta je in het Utrechtse Elst. In Ingen zijn veel eengezinswoningen en de nodige voorzieningen voor kinderen. Denk aan een kinderdagverblijf, basisschool en voetbal- en gymnastiekvereniging. Ook voor senioren zijn er veel woningen in Ingen, evenals een actieve buurtvereniging, kerk en dorpscafé. Voor de boodschappen biedt het naastgelegen Lienden voldoende aanbod.

Voor uitgebreide informatie over de buurt kunt u terecht op www.postcodebijadres.nl.

Overname van spullen
In deze woning zijn de volgende overnames: gordijnen en novylon. 

Energievoorzieningen
De woning beschikt over perilex aansluiting voor elektrisch koken. 

Voor wie is deze woning geschikt?
Deze woning is speciaal bedoeld voor stellen/echtparen of alleenstaanden die meedoen met het doorstroombeleid 55+. Maximale gezinsgrootte 2 personen. Alleen voor huishoudens zonder kinderen. 

Controleer of deze woning geschikt is voor uw situatie door in te loggen en uw inkomensgegevens in te vullen.
Wilt u weten of u in aanmerking komt voor huurtoeslag? Maak een proefberekening via www.toeslagen.nl om verrassingen te voorkomen.

Hoe verloopt het proces?
Na sluiting van de reactietermijn ontvangen de eerste 3 kandidaten een uitnodiging voor de bezichtiging. Indien zij geen belangstelling hebben of niet voldoen aan de voorwaarden, worden de volgende 3 kandidaten benaderd. 

Voorwaarden
Bij acceptatie van de woning moet u uw inkomen aantonen met een inkomensverklaring over 2024 of 2025. Dit geldt ook voor een eventuele mede-inschrijver en andere volwassenen die meeverhuizen.

  • Vraag uw inkomensverklaring eenvoudig aan via www.mijnbelastingdienst.nl met uw DigiD.
  • Heeft u geen DigiD? Bel dan de Belastingdienst via 0800-0543 met uw burgerservicenummer bij de hand. U ontvangt de verklaring binnen vijf werkdagen.

Houd er rekening mee dat u bij het reageren op de woning al over de inkomensverklaring beschikt en het bedrag uit de verklaring in uw profiel heeft ingevuld.

📋 Specificaties

Type

Woonruimte

Soort woning

Galerijflat

Verdieping

0

Lift

✅ Ja

🏠 Vertrekken

Slaapkamer 2x (24m²)
Woonkamer 1x (19m²)

💰 Prijsopbouw

Niet subsidiabele servicekosten €71,00

📍 Locatie

Kaart laden...

🚉

OV

5 min lopen naar station

🏬

Winkels

2 min lopen

🏫

Scholen

Meerdere binnen 1km

🌳

Park

10 min lopen

✅ Selectiecriteria

Maximum inkomen eenpersoonshuishouden muv deelnemers doorstroombeleid 55+
Maximum inkomen meerpersoonshuishouden muv deelnemers doorstroombeleid 55+
Alleen geschikt voor huishoudens zonder kinderen
Meld je aan