Terug Dr. Oortwijn Botjeslaan 127
Dr. Oortwijn Botjeslaan 127 9681GG Midwolda

Dr. Oortwijn Botjeslaan 127
9681GG Midwolda, Midwolda

€748,50

Per maand

Interesse in dit type woning?

Ontvang direct bericht als er nieuwe woningen beschikbaar komen die bij uw woonwensen passen.

Meld je aan voor woningalerts

Gratis en vrijblijvend

Historische informatie

Deze huurwoning was beschikbaar voor reacties van 16-12-2025 tot 22-12-2025. Deze woning is niet meer beschikbaar voor nieuwe reacties.

🏠

74m²

Woonoppervlakte

🛏️

3

Kamers

Leegstand

Status

🌟

A

Energielabel

De Woldstede ligt in het centrum van Midwolda, op de plek van de voormalige basisschool. Direct naast het complex ligt een klein park, waar u fijn kunt wandelen. In de buurt vindt u een supermarkt, een bakker en meerdere restaurants.

Het wooncomplex bestaat uit 19 driekamerwoningen verdeeld over twee woonlagen. Bewoners kunnen gebruikmaken van de recreatieruimte en de gezamenlijke fietsenberging. De Steunstee organiseert activiteiten in het complex. Ook komt de apotheker uit Scheemda dagelijks langs om medicijnen op te halen en te bezorgen. Op vrijdagmiddag is Certe aanwezig voor bloedprikken.

De bewonersconsulent is het aanspreekpunt voor alle huurders. Deze persoon maakt u wegwijs in uw nieuwe woonomgeving, ziet erop toe dat u prettig en rustig woont en zorgt ervoor dat u precies de service krijgt die u wenst.

Duurzaam Wonen

Woonzorg Nederland wil milieubewust en duurzaam zijn. We streven ernaar dat onze woningen in 2030 gemiddeld energielabel B hebben. En in 2050 energieneutraal zijn. Lees meer over Duurzaam Wonen in Woldstede

Over de woningen

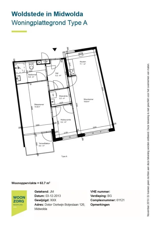
De woningen hebben een oppervlakte van circa 65 m². De woningen zijn aangepast aan de wensen en behoeften van senioren en voldoen aan het zogenaamde ‘seniorenlabel’. Dit betekent dat de woningen gelijkvloers zijn en rolstoeltoegankelijk.

📋 Specificaties

Type

Woonruimte

Soort woning

Corridorflat

Verdieping

0

Lift

✅ Ja

🏠 Vertrekken

Badkamer/toilet 1x (5.8m²)
Slaapkamer 2x (22.2m²)
Keuken 1x (7.1m²)
Woonkamer 1x (20.1m²)

💰 Prijsopbouw

Niet subsidiabele servicekosten €52,79
Water €12,76

📍 Locatie

Kaart laden...

🚉

OV

5 min lopen naar station

🏬

Winkels

2 min lopen

🏫

Scholen

Meerdere binnen 1km

🌳

Park

10 min lopen

✅ Selectiecriteria

is kleiner of gelijk aan 2
Uitsluitend voor huishoudens zonder inwonende kinderen
Je inkomen is niet hoger dan € 51537
Je inkomen is niet hoger dan € 56910
vanaf 55 jaar
Meld je aan