Diepenbrocklaan 61 3438XZ Nieuwegein

Diepenbrocklaan 61
3438XZ Nieuwegein, Zuilenstein-Zuid

€834,51

Per maand

Interesse in dit type woning?

Ontvang direct bericht als er nieuwe woningen beschikbaar komen die bij uw woonwensen passen.

Meld je aan voor woningalerts

Gratis en vrijblijvend

Historische informatie

Deze huurwoning was beschikbaar voor reacties van 23-03-2026 tot 30-03-2026. Deze woning is niet meer beschikbaar voor nieuwe reacties.

🏠

51.13m²

Woonoppervlakte

🛏️

2

Kamers

Leegstand

Status

🌟

C

Energielabel

Omschrijving woning
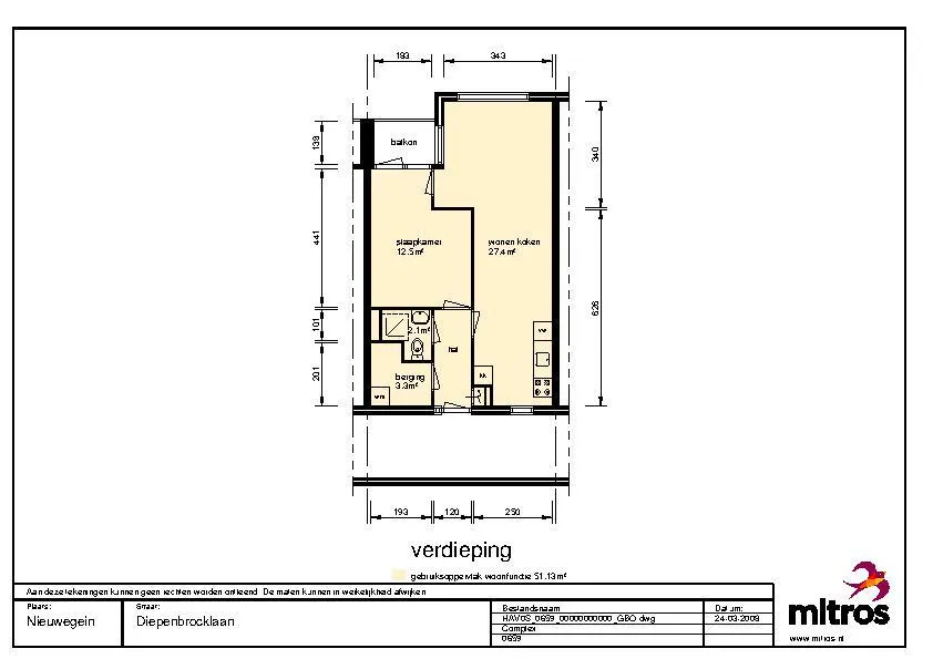
Tweekamer appartement in de wijk Zuilenstein. Het appartement ligt op de eerste verdieping. Er is een berging. Er kan elektrisch worden gekookt.

Omgeving woning
De woning ligt gunstig gelegen ten opzichte van de winkels, scholen en diverse parkjes. Je bent met de auto en/of fiets binnen enkele minuten op CityPlaza of andere kleine winkelcentra. Diverse uitvalswegen (A2/A12/A27) zijn nabij. Nieuwegein is ook erg goed bereikbaar met het openbaar vervoer (tram/bus­).

Energielabel
Op dit moment is er geen energielabel van de woning aanwezig. Op het moment van oplevering van de woning is deze wel beschikbaar.

Bijzonderheden
- Het plaatsen van een schotelantenne is niet toegestaan bij deze woning.
- Bij 65+ maximaal 2 personen: geen kinderen toegestaan. Bent u 50 jaar of jonger of met meer dan 2 personen, dan kan er een intake plaatsvinden.

📋 Specificaties

Type

Woonruimte

Soort woning

Corridorflat

Verdieping

1

Lift

✅ Ja

🏠 Vertrekken

Hal 1x (2m²)
Berging 2x (6.84m²)
Badkamer/toilet 1x (3.3m²)
Slaapkamer 1x (12.5m²)
Woonkamer/keuken 1x (27.4m²)

💰 Prijsopbouw

Warmte €95,00
Niet subsidiabele servicekosten €26,49

📍 Locatie

Kaart laden...

🚉

OV

5 min lopen naar station

🏬

Winkels

2 min lopen

🏫

Scholen

Meerdere binnen 1km

🌳

Park

10 min lopen

✅ Selectiecriteria

Je inkomen is niet hoger dan € 51537
Je inkomen is niet hoger dan € 56910
Meld je aan