Terug De Bluijtencamp 21
De Bluijtencamp 21 4051HH Ochten

De Bluijtencamp 21
4051HH Ochten, Ochten

€815,94

Per maand

Interesse in dit type woning?

Ontvang direct bericht als er nieuwe woningen beschikbaar komen die bij uw woonwensen passen.

Meld je aan voor woningalerts

Gratis en vrijblijvend

Historische informatie

Deze huurwoning was beschikbaar voor reacties van 31-03-2026 tot 08-04-2026. Deze woning is niet meer beschikbaar voor nieuwe reacties.

🏠

83m²

Woonoppervlakte

🛏️

3

Kamers

Leegstand

Status

🌟

B

Energielabel

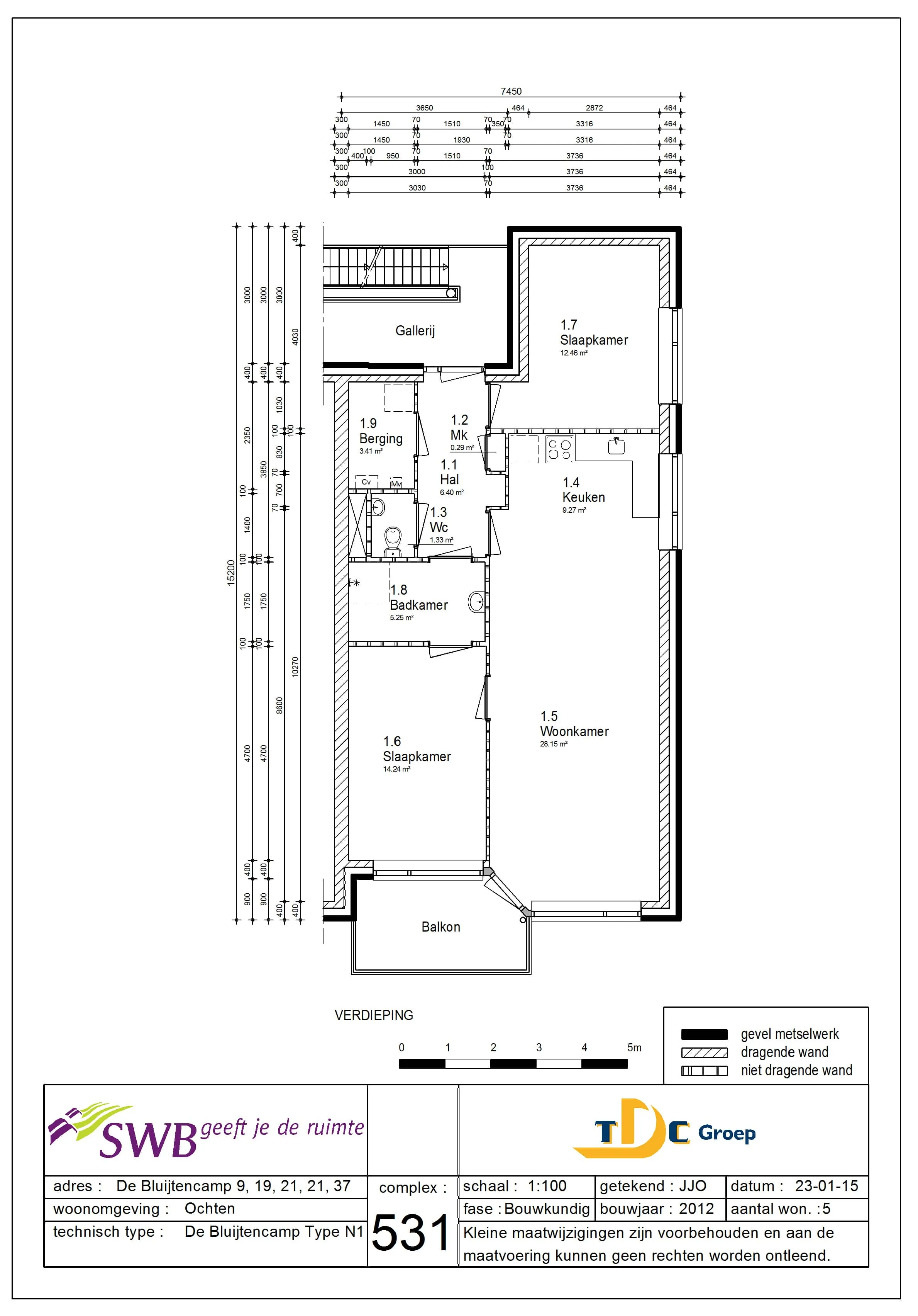
Net en compact appartement aan De Bluijtencamp 21 in Ochten met twee slaapkamers en een separaat toilet. Ideaal voor wie zoekt naar een praktische woning met overzichtelijke indeling en goede bereikbaarheid.

Indeling van de woning

• Woonkamer
Lichte woonkamer met voldoende ruimte voor zithoek en eethoek. Ramen zorgen voor prettig daglicht.

• Keuken
Praktische keukenopstelling met werkblad en kastruimte. Aansluitingen voor witgoed aanwezig.

• Slaapkamers
Twee slaapkamers van goed formaat, geschikt als slaapruimte, werk- of hobbykamer.

• Badkamer en toilet
Badkamer met douche en wastafel; het toilet is separaat gelegen.

Voorzieningen in de buurt

• Nabij gelegen voorzieningen zoals winkels en openbaar vervoer; exacte voorzieningen verschillen per locatie.

• Raadpleeg altijd: http://www.postcodebijadres.nl

Overname van spullen

Eventuele overname van spullen of voorzieningen kan besproken worden tijdens de bezichtiging.

Energievoorzieningen

Aansluitingen aanwezig voor elektriciteit, gas en water. 

Voor wie is deze woning geschikt?

• Algemeen: Geschikt voor huurders die op zoek zijn naar een compact 2-slaapkamerappartement in Ochten.

• Senioren: Het complex voldoet niet aan de specifieke eisen voor seniorenwoningen; daarom wordt de woning regulier aangeboden. U kan er wel op reageren en kans maken op de woning op basis van inschrijfduur. 

• Starters: Aantrekkelijk voor starters vanwege de praktische indeling en het onderhoudsvriendelijke karakter.

Hoe verloopt het proces?

Na sluiting van de reactietermijn ontvangen de eerste kandidaten een uitnodiging voor de bezichtiging. Indien zij afzien of niet voldoen aan de voorwaarden, worden de volgende kandidaten benaderd.

Voorwaarden

• Altijd inkomensverklaring: 2024 of 2025.

• Belastingdienst + DigiD uitleg standaard toevoegen: U dient de gevraagde inkomensdocumenten aan te leveren, zoals een inkomensverklaring van de Belastingdienst. Deze verklaring kunt u opvragen via Mijn Belastingdienst met uw DigiD. Zorg dat uw DigiD actief is en dat u toegang heeft tot de benodigde gegevens voordat u de documenten aanlevert.

• Eventuele aanvullende voorwaarden en toetsingscriteria worden bij aanvraag verstrekt.

 

📋 Specificaties

Type

Woonruimte

Soort woning

Galerijflat

Verdieping

4

Lift

✅ Ja

🏠 Vertrekken

Slaapkamer 2x (26m²)
Woonkamer 1x (29m²)

💰 Prijsopbouw

Niet subsidiabele servicekosten €80,55

📍 Locatie

Kaart laden...

🚉

OV

5 min lopen naar station

🏬

Winkels

2 min lopen

🏫

Scholen

Meerdere binnen 1km

🌳

Park

10 min lopen

✅ Selectiecriteria

is groter of gelijk aan 1
4
Je inkomen is niet hoger dan € 51537
Je inkomen is niet hoger dan € 56910
Meld je aan