
Het Voorburg 14
4032NX Ommeren, Ommeren met Den Eng
€753,88
Per maand
Interesse in dit type woning?
Ontvang direct bericht als er nieuwe woningen beschikbaar komen die bij uw woonwensen passen.
Meld je aan voor woningalertsGratis en vrijblijvend
Historische informatie
Deze huurwoning was beschikbaar voor reacties van 02-10-2025 tot 10-10-2025. Deze woning is niet meer beschikbaar voor nieuwe reacties.
89m²
Woonoppervlakte
4
Kamers
Leegstand
Status
B
Energielabel
Omschrijving
Aangeboden door ThiusBent u op zoek naar de ideale seniorenwoning in het charmante dorp Ommeren, reageer dan snel op deze woning!
Deze woning aan het Voorburg 14 te Ommeren biedt u een comfortabele en zorgeloze leefomgeving, perfect afgestemd op uw wensen.
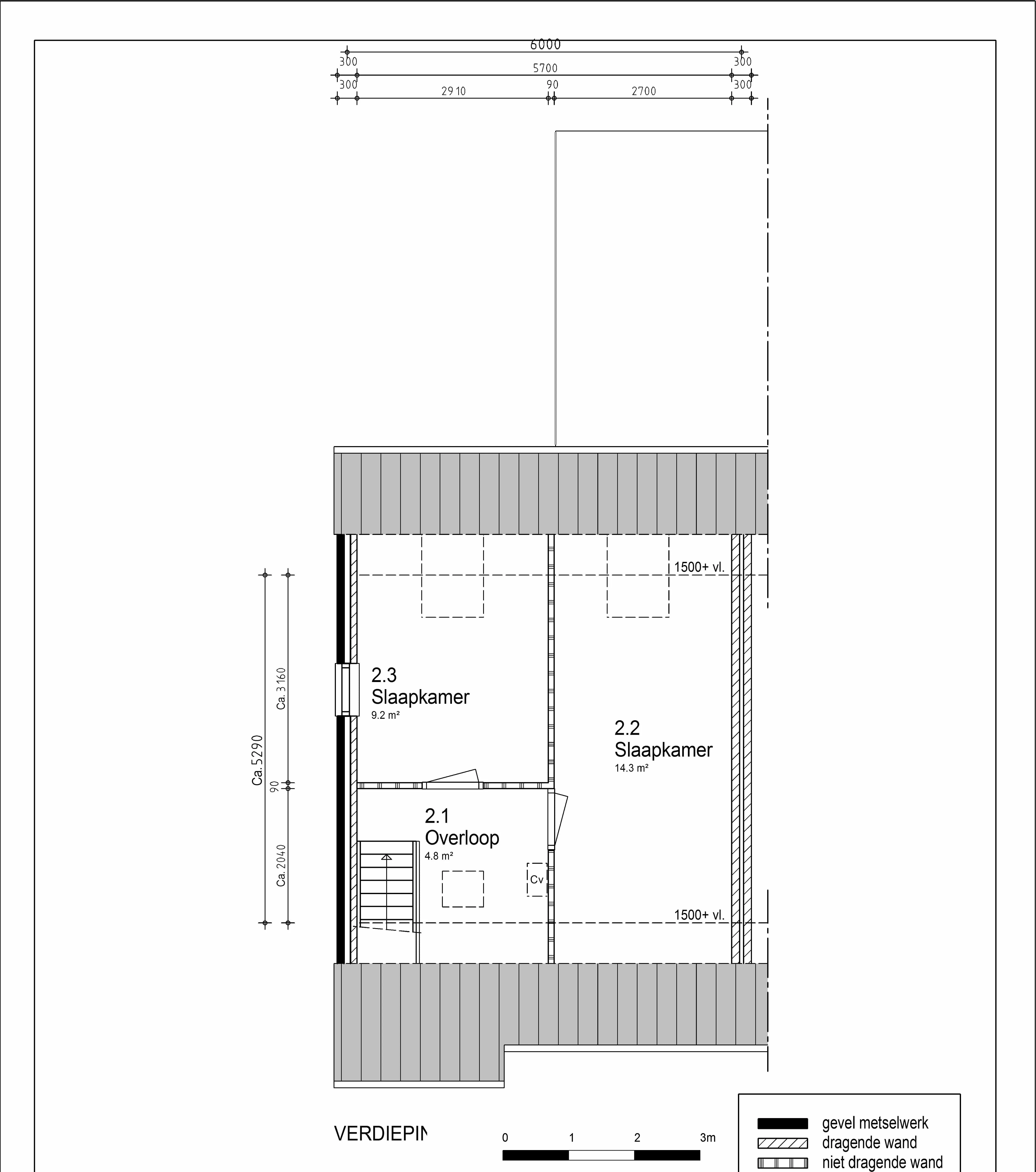
Indeling van de woning
- Woonkamer: deze woning heeft een ruime woonkamer
- Keuken: er wordt een nieuwe keuken geplaatst
- Slaapkamers: er is een slaapkamer op de begane grond en 2 extra slaapkamers op de verdieping.
- Badkamer: een nette badkamer met een toilet
- Tuin: er is een nette voor- en achtertuin met een eigen achterom.
Overnames
Het tuinhuisje, de buitenkraan en de zonnescreens zijn ter overname aangeboden. Dit kunt u bespreken bij de bezichtiging.
Energievoorzieningen
Er worden zonnepanelen op het dak geplaatst en een Perilex-aansluiting in de keuken. Dit zorgt voor lagere energiekosten en een energiezuinige, duurzame woonomgeving
Voor wie is deze woning geschikt?
Deze woning is speciaal bedoeld voor senioren vanaf 55 jaar. Controleer of deze woning geschikt is voor uw situatie door in te loggen en uw inkomensgegevens in te vullen.
Wilt u weten of u in aanmerking komt voor huurtoeslag? Maak een proefberekening via www.toeslagen.nl om verrassingen te voorkomen.
Hoe verloopt het proces?
Na sluiting van de reactie termijn ontvangen de eerste 3 kandidaten een uitnodiging voor de bezichtiging. Indien zij geen belangstelling hebben of niet voldoen aan de voorwaarden, worden de volgende 3 kandidaten benaderd.
Voorzieningen in de buurt
Ommeren is een charmant en historisch dorp gelegen in de gemeente Buren.
Met ongeveer 650 inwoners is Ommeren een kleinschalige, hechte gemeenschap. De bevolking bestaat uit een mix van geboren en getogen inwoners, jonge gezinnen die kiezen voor rust en ruimte, en forensen die de combinatie van landelijk wonen en goede bereikbaarheid waarderen.
Ommeren ligt op slechts ongeveer 5 kilometer van de A15, wat zorgt voor een vlotte verbinding richting steden als Tiel.. Ondanks deze goede bereikbaarheid blijft de omgeving landelijk en rustig.
De woonomgeving bestaat uit een gevarieerd aanbod: karakteristieke oude boerderijen, vrijstaande woningen en recentere uitbreidingen zoals het hofje Ommerstein. Deze mix van oud en nieuw maakt het dorp aantrekkelijk voor zowel ouderen als jonge gezinnen die op zoek zijn naar een rustige leefomgeving met een vleugje geschiedenis.
Daarnaast ligt Ommeren nabij de rivier de Linge en verschillende natuurgebieden, wat volop mogelijkheden biedt voor wandelen, fietsen en recreatie in de natuur.
📋 Specificaties
Type
Woonruimte
Soort woning
Hoekwoning
Lift
❌ Nee
🏠 Vertrekken
📍 Locatie
OV
5 min lopen naar station
Winkels
2 min lopen
Scholen
Meerdere binnen 1km
Park
10 min lopen