
Lisweg 445
1511XS Oostzaan, Kerkbuurt
€710,72
Per maand
Interesse in dit type woning?
Ontvang direct bericht als er nieuwe woningen beschikbaar komen die bij uw woonwensen passen.
Meld je aan voor woningalertsGratis en vrijblijvend
Historische informatie
Deze huurwoning was beschikbaar voor reacties van 17-10-2025 tot 24-10-2025. Deze woning is niet meer beschikbaar voor nieuwe reacties.
36.5m²
Woonoppervlakte
2
Kamers
Leegstand
Status
A
Energielabel
Omschrijving
Aangeboden door WormerWonenAppartement met 2 kamers op de 1e etage in Oostzaan voor jongeren vanaf 23 tot en met 27 jaar
Toewijzingsinformatie
- U bent tussen 23 en 27 jaar bent
- U kunt hier met maximaal 2 personen wonen (niet geschikt voor een gezin)
Energielabel & aandachtspunten
EPA-label: A
- Vloerverwarming
- U kookt op gas
- Lift aanwezig
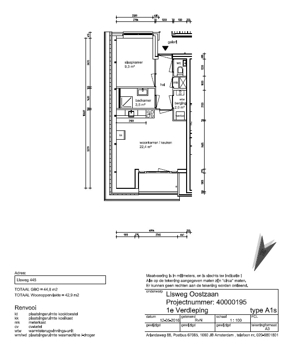
Woningkenmerken
- Woning bevindt zich op de 1e etage
- Woonkamer met open keuken (u kookt op gas)
- 1 Slaapkamer
- Badkamer met douche en wastafel
- Berging met machineaansluiting
- Toilet met fonteintje
- Balkon
In de buurt
- Diverse winkels
- Huisartsenpraktijk
- Fysiotherapie
- Apotheek
- De Lisweg zijn energiezuinige woningen in een kleinschalig complex (14 woningen) in het dorpshart van Oostzaan, recent overgenomen door WormerWonen. U woont hier rustig, maar met alle voorzieningen dichtbij: supermarkten en overige winkels liggen letterlijk om de hoek. Diverse horeca gelegenheden en het theater De Kunstgreep behoren ook tot het centrum van Oostzaan. Ook zijn er een aantal (sport) verengingen. De bushalte met R-net richting Amsterdam en Zaandam bevindt zich op korte loopafstand en via de A8/A10 bent u snel met de auto onderweg. Huisarts en apotheek liggen in het centrum, op enkele minuten lopen, en ook basisscholen en kinderopvang zijn nabij. Voor ontspanning fietst u in enkele minuten naar recreatiegebied Het Twiske. Parkeren kan op eigen terrein of in de straat, en er zijn goede fietsroutes richting Amsterdam en Zaandam. Kortom: comfortabel en centraal wonen met alles binnen handbereik.
Verduurzaming: wat is er al gedaan?
- Volledig geïsoleerd
- Vloerverwarming
Technische staat
- Houd u er rekening mee dat u zelf nog wat aan de woning moet doen. Denk aan schilderen van muren en plafonds, afstomen van behang en/of leggen van een vloer.
- De volgende zaken heeft WormerWonen altijd voor u gedaan:
- De sloten (cilinders) in de buitendeuren zijn vervangen
- Het hang- en sluitwerk is gecontroleerd en afgesteld
- De cv-installatie is bijgevuld en ontlucht
- De ventilatie-ventielen en -roosters zijn gereinigd en gangbaar gemaakt
- De kranen zijn gecontroleerd en gebreken verholpen
- De toiletbril(len) is vervangen
- De douchekop en -slang zijn vervangen
- De vloeren zijn bezemschoon gemaakt
- Het tegelwerk is gereinigd (kalk)
- De keukendeurtjes en -laden zijn afgesteld
Overname/evt. overige informatie
U kunt evt. roerende zaken overnemen van de vertrekkende bewoner. Wij brengen de nieuwe huurder altijd in contact met de vertrekkende bewoner om deze zaken te bespreken. De nieuwe huurder is tot niets verplicht.
📋 Specificaties
Type
Woonruimte
Soort woning
Galerijflat
Verdieping
1
Lift
✅ Ja
🏠 Vertrekken
💰 Prijsopbouw
📍 Locatie
OV
5 min lopen naar station
Winkels
2 min lopen
Scholen
Meerdere binnen 1km
Park
10 min lopen