
Verlengde Oude Veenendaalseweg 34
3911XC Rhenen, Helling Bergweg
€689,81
Per maand
Interesse in dit type woning?
Ontvang direct bericht als er nieuwe woningen beschikbaar komen die bij uw woonwensen passen.
Meld je aan voor woningalertsGratis en vrijblijvend
Historische informatie
Deze huurwoning was beschikbaar voor reacties van 09-10-2025 tot 12-10-2025. Deze woning is niet meer beschikbaar voor nieuwe reacties.
30m²
Woonoppervlakte
2
Kamers
Leegstand
Status
A+++
Energielabel
Omschrijving
Aangeboden door Rhenam WonenEnergiezuinige flexwoning met 1 slaapkamer
Het project
Flexwoningen zijn woningen die voor een bepaalde tijd gebouwd worden. De gemeente Rhenen aan de rand van Rhenen vijftien flexwoningen geplaatst voor ca. 9 jaar. Rhenam Wonen verhuurt en beheert de flexwoningen voor de gemeente. Vijf flexwoningen zijn gereserveerd voor bijzondere doelgroepen. De andere tien flexwoningen worden regulier verdeeld via Huiswaarts.
Doelgroep
De flexwoningen zijn bestemd voor eenpersoonshuishoudens. Voor meer informatie over de toewijzing zie de voorwaarden en spelregels. Woningzoekenden met een lokale binding (economische of maatschappelijke binding) aan de gemeente Rhenen krijgen voorrang (zie huiswaarts.mijndak.nl voor meer informatie). Voldoet u hieraan? Vink de binding aan in uw inschrijving bij Huiswaarts voordat u reageert op de flexwoningen.
Planning kijkmoment en verhuur
Er is een kijkmoment gepland voor belangstellenden. Op maandag 13 oktober van 16-17.30u is één van de flexwoningen opengesteld voor bezichtiging. U bent van harte welkom.
De sleuteluitgifte van de woningen is op vrijdag 31 oktober a.s. Reserveer deze data alvast in uw agenda.
Behoud inschrijftijd Huiswaarts
Normaalgesproken verdwijnt uw inschrijving in Huiswaarts op het moment dat u een woning accepteert. Bij de flexwoningen is dat niet het geval. Uw inschrijving bij Huiswaarts blijft gehandhaafd na acceptatie van een flexwoning.
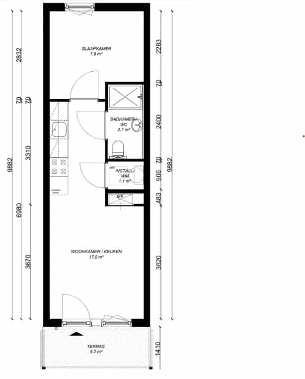
De woningen
De tweekamerwoningen hebben een aparte slaapkamer, badkamer met toilet, keuken, technische ruimte voor de warmtepomp met opstelplaats voor de wasmachine, duurzame installaties. De keuken is alleen geschikt voor koken op inductie (kookapparaat dient u zelf aan te schaffen). Een afzuigkap is aanwezig. De woningen zijn goed geïsoleerd, gasloos en voorzien van zonnepanelen.
Het terrein
Op het terrein is een ondergrondse vuilcontainer voor restafval aanwezig. Parkeren kan op het parkeerterrein nabij de woningen. Op het terrein is verder een gemeenschappelijke tuin en (fietsen)berging aanwezig.
📋 Specificaties
Type
Woonruimte
Soort woning
Tussenwoning
Lift
❌ Nee
🏠 Vertrekken
💰 Prijsopbouw
📍 Locatie
OV
5 min lopen naar station
Winkels
2 min lopen
Scholen
Meerdere binnen 1km
Park
10 min lopen