Terug Wiardi Beckmanstraat 201
Wiardi Beckmanstraat 201 3762GE Soest

Wiardi Beckmanstraat 201
3762GE Soest, Klaarwater

€924,34

Per maand

Interesse in dit type woning?

Ontvang direct bericht als er nieuwe woningen beschikbaar komen die bij uw woonwensen passen.

Meld je aan voor woningalerts

Gratis en vrijblijvend

Historische informatie

Deze huurwoning was beschikbaar voor reacties van 26-02-2026 tot 02-03-2026. Deze woning is niet meer beschikbaar voor nieuwe reacties.

🏠

40.47m²

Woonoppervlakte

🛏️

2

Kamers

Leegstand

Status

🌟

A

Energielabel

Let op: Deze woning wordt alleen toegewezen aan kandidaten vanaf 65 jaar.

Wiardi Beckmanstraat 201 ligt in woongebouw “Honsbergen” centraal gelegen in de wijk Klaarwater. Het appartement bevindt zich op de 3e etage en is gelegen aan de voorzijde van het gebouw. Onder het uit drie vleugels bestaande gebouw is een supermarkt gevestigd, een kapper, een peuterspeelzaal en een restaurant.

Het woongebouw heeft 225 appartementen, waaronder 182 tweekamerappartementen, 30 driekamerappartementen, 5 kleine aangepaste appartementen voor mindervaliden en 8 grote aangepaste appartementen voor minder validen.

Omthuis verhuurt woningen voor senioren vanaf 65 jaar. Met zaken die wonen net even wat makkelijker maken:  een huismeester, persoonsalarmering, bibliotheek,  logeerkamers voor gasten, ontmoetingscentrum en een actieve bewonerscommissie. Huurtoeslag is mogelijk afhankelijk van het inkomen. Geen meeverhuizende kinderen mogelijk.

📋 Specificaties

Type

Woonruimte

Soort woning

Portiekflat

Verdieping

4

Lift

✅ Ja

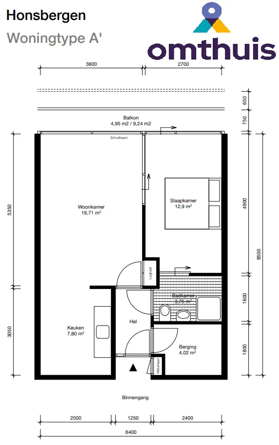
🏠 Vertrekken

Hal 1x (2.5m²)
Badkamer/toilet 1x (3.75m²)
Berging 1x (4.02m²)
Slaapkamer 1x (12.96m²)
Woonkamer/keuken 1x (27.51m²)

💰 Prijsopbouw

Warmte €120,00
Niet subsidiabele servicekosten €68,43
Water €13,83

📍 Locatie

Kaart laden...

🚉

OV

5 min lopen naar station

🏬

Winkels

2 min lopen

🏫

Scholen

Meerdere binnen 1km

🌳

Park

10 min lopen

✅ Selectiecriteria

Uitsluitend voor huishoudens zonder inwonende kinderen
Uw inkomen moet passen bij de huurprijs
Je inkomen is niet hoger dan € 51537
Je inkomen is niet hoger dan € 56910
55 jaar
Meld je aan