Dorpsplein 91 3769VD Soesterberg

Dorpsplein 91
3769VD Soesterberg, Soesterberg Kom

€772,76

Per maand

Interesse in dit type woning?

Ontvang direct bericht als er nieuwe woningen beschikbaar komen die bij uw woonwensen passen.

Meld je aan voor woningalerts

Gratis en vrijblijvend

Historische informatie

Deze huurwoning was beschikbaar voor reacties van 02-04-2026 tot 07-04-2026. Deze woning is niet meer beschikbaar voor nieuwe reacties.

🏠

53.55m²

Woonoppervlakte

🛏️

2

Kamers

Leegstand

Status

🌟

C

Energielabel

De Drie Eiken:

Belangrijke informatie: Het woongebouw staat gepland voor sloop en nieuwbouw in de toekomst. Er is nog geen exacte startdatum bekend. De verwachting is dat dit traject nog een aantal jaren zal duren voordat de sloopwerkzaamheden starten. Huurders worden hiervan tijdig op de hoogte gesteld en begeleid bij eventuele herhuisvesting.

Dorpsplein 91 ligt in woongebouw “De Drie Eiken” gelegen aan het Dorpsplein, op steenworp afstand van een winkelcentrum, bushalte en uitvalswegen. Het woongebouw heeft 87 appartementen met aan de voorzijde een zonnig balkon over de hele breedte van het appartement. Het woongebouw is omgeven door een aangelegde tuin. Aan de achterzijde is een jeu-de-boules-baan aangelegd. Alle appartementen zijn toegankelijk met een rolstoel. Een renovatie van het woongebouw is in voorbereiding.

Omthuis verhuurt woningen voor senioren vanaf 65 jaar. Met zaken die wonen net even wat makkelijker maken:  een huismeester,  persoonsalarmering, ontmoetingscentrum en een actieve bewonerscommissie. Huurtoeslag is mogelijk afhankelijk van het inkomen. Geen meeverhuizende kinderen mogelijk.

Voor meer informatie: www.omthuis.nl

📋 Specificaties

Type

Woonruimte

Soort woning

Portiekflat

Verdieping

5

Lift

✅ Ja

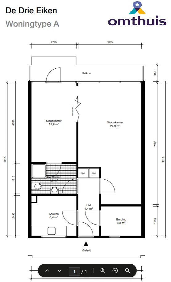
🏠 Vertrekken

Berging 1x (4.3m²)
Hal 1x (4.4m²)
Badkamer/toilet 1x (4.95m²)
Keuken 1x (6.4m²)
Slaapkamer 1x (12.9m²)
Woonkamer 1x (24.9m²)

💰 Prijsopbouw

Warmte €140,00
Water €14,24
Niet subsidiabele servicekosten €76,54
Electriciteit €30,00

📍 Locatie

Kaart laden...

🚉

OV

5 min lopen naar station

🏬

Winkels

2 min lopen

🏫

Scholen

Meerdere binnen 1km

🌳

Park

10 min lopen

✅ Selectiecriteria

Uitsluitend voor huishoudens zonder inwonende kinderen
Je inkomen is niet hoger dan € 51537
Je inkomen is niet hoger dan € 56910
55 jaar
Meld je aan