Hondsrug 125 3524BW Utrecht

Hondsrug 125
3524BW Utrecht, Lunetten-Noord

€860,38

Per maand

Interesse in dit type woning?

Ontvang direct bericht als er nieuwe woningen beschikbaar komen die bij uw woonwensen passen.

Meld je aan voor woningalerts

Gratis en vrijblijvend

Historische informatie

Deze huurwoning was beschikbaar voor reacties van 16-10-2024 tot 20-10-2024. Deze woning is niet meer beschikbaar voor nieuwe reacties.

🏠

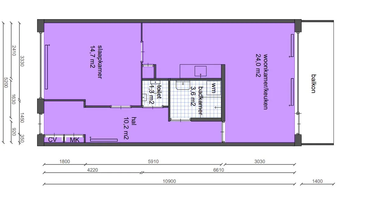
42m²

Woonoppervlakte

🛏️

2

Kamers

Verhuurd

Status

🌟

B

Energielabel

Wonen tussen natuur en stad in? Dat kan in Lunetten! Je woont op een kwartier fietsen van het centrum, en binnen 20 minuten sta je op het Utrecht Science Park. Station Vaartsche Rijn en Station Lunetten zijn bovendien super dichtbij, en voor je dagelijkse boodschappen kun je terecht in Winkelcentrum Lunetten. Zoek je liever het groen op? Langs de rivier de Krommerijn en door landgoed Amelisweerd kun je heerlijk wandelen. Tot slot is deze locatie ook ideaal voor buitensporters: Lunetten is hét startpunt van je fiets- of hardlooproute!

📋 Specificaties

Type

Woonruimte

Soort woning

Galerijflat

Verdieping

1

Lift

❌ Nee

🏠 Vertrekken

Woonkamer/keuken 1x (24m²)
Slaapkamer 1x (15m²)
Hal 1x (10m²)
Badkamer 1x (4m²)

💰 Prijsopbouw

Subsidiabele servicekosten €17,51
Niet subsidiabele servicekosten €8,60

📍 Locatie

Kaart laden...

🚉

OV

5 min lopen naar station

🏬

Winkels

2 min lopen

🏫

Scholen

Meerdere binnen 1km

🌳

Park

10 min lopen

✅ Selectiecriteria

U bent jonger dan 28 jaar
Je inkomen is passend
Je inkomen is niet hoger dan € 47699
Je inkomen is niet hoger dan € 52671
Meld je aan