C. van Maasdijkstraat 90 e 3555VP Utrecht

C. van Maasdijkstraat 90 e
3555VP Utrecht, Prins Bernhardplein en omgeving

€982,93

Per maand

Interesse in dit type woning?

Ontvang direct bericht als er nieuwe woningen beschikbaar komen die bij uw woonwensen passen.

Meld je aan voor woningalerts

Gratis en vrijblijvend

Historische informatie

Deze huurwoning was beschikbaar voor reacties van 13-04-2026 tot 13-05-2026. Deze woning is niet meer beschikbaar voor nieuwe reacties.

🏠

50m²

Woonoppervlakte

🛏️

2

Kamers

Leegstand

Status

🌟

A

Energielabel

Appartement van ca. 50 m² met energielabel A en zonnig balkon op het Zuid-Westen.

In de  populaire wijk Zuilen in Utrecht ligt dit moderne 2-kamerappartement met een zonnig balkon op het zuidwesten. De woning maakt onderdeel uit van een recent gerealiseerd nieuwbouwcomplex en kenmerkt zich door de grote hoeveelheid lichtinval en een praktische indeling.

Het Julianapark ligt op loopafstand en de binnenstad van Utrecht is binnen circa 15 minuten per fiets bereikbaar. Daarnaast zijn uitvalswegen zoals de A2 en A27 snel te bereiken en zijn zowel station Zuilen als Utrecht Centraal goed bereikbaar per fiets en openbaar vervoer.

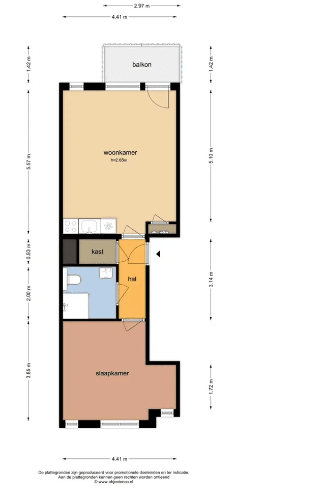
BEGANE GROND
Op de begane grond bevindt zich de gezamenlijke, afgesloten entree met video-deurbel. Tevens beschikt het appartement over een afgesloten, gezamenlijke houten berging/fietsenstalling.

TWEEDE VERDIEPING
Het appartement is gelegen op de tweede verdieping en via de trap bereikbaar. Via de hal zijn de verschillende vertrekken toegankelijk. De woonkamer, gelegen aan de achterzijde, beschikt over grote raampartijen waardoor er veel natuurlijk licht binnenvalt. Vanuit de woonkamer is het balkon bereikbaar, gesitueerd op het zuidwesten – een fijne plek om in de middag en avond van de zon te genieten.

De open keuken is voorzien van een inductiekookplaat en afzuigkap.

Het appartement beschikt over één slaapkamer met veel licht. Daarnaast is er een badkamer en een separate kast/bergruimte aanwezig.

📋 Specificaties

Type

Woonruimte

Soort woning

Portiekwoning

Verdieping

2

Lift

❌ Nee

🏠 Vertrekken

Slaapkamer 1x (15.99m²)
Woonkamer 1x (24.61m²)

💰 Prijsopbouw

Niet subsidiabele servicekosten €50,00

📍 Locatie

Kaart laden...

🚉

OV

5 min lopen naar station

🏬

Winkels

2 min lopen

🏫

Scholen

Meerdere binnen 1km

🌳

Park

10 min lopen

✅ Selectiecriteria

Je inkomen is niet hoger dan € 51537
Je inkomen is niet hoger dan € 56910
Er geldt een minimuminkomen
Meld je aan