Terug Victoria Regiadreef 76 P
Victoria Regiadreef 76 P 3563GK Utrecht

Victoria Regiadreef 76 P
3563GK Utrecht, Vechtzoom-zuid

€933,97

Per maand

Interesse in dit type woning?

Ontvang direct bericht als er nieuwe woningen beschikbaar komen die bij uw woonwensen passen.

Meld je aan voor woningalerts

Gratis en vrijblijvend

Historische informatie

Deze huurwoning was beschikbaar voor reacties van 06-11-2025 tot 11-11-2025. Deze woning is niet meer beschikbaar voor nieuwe reacties.

🏠

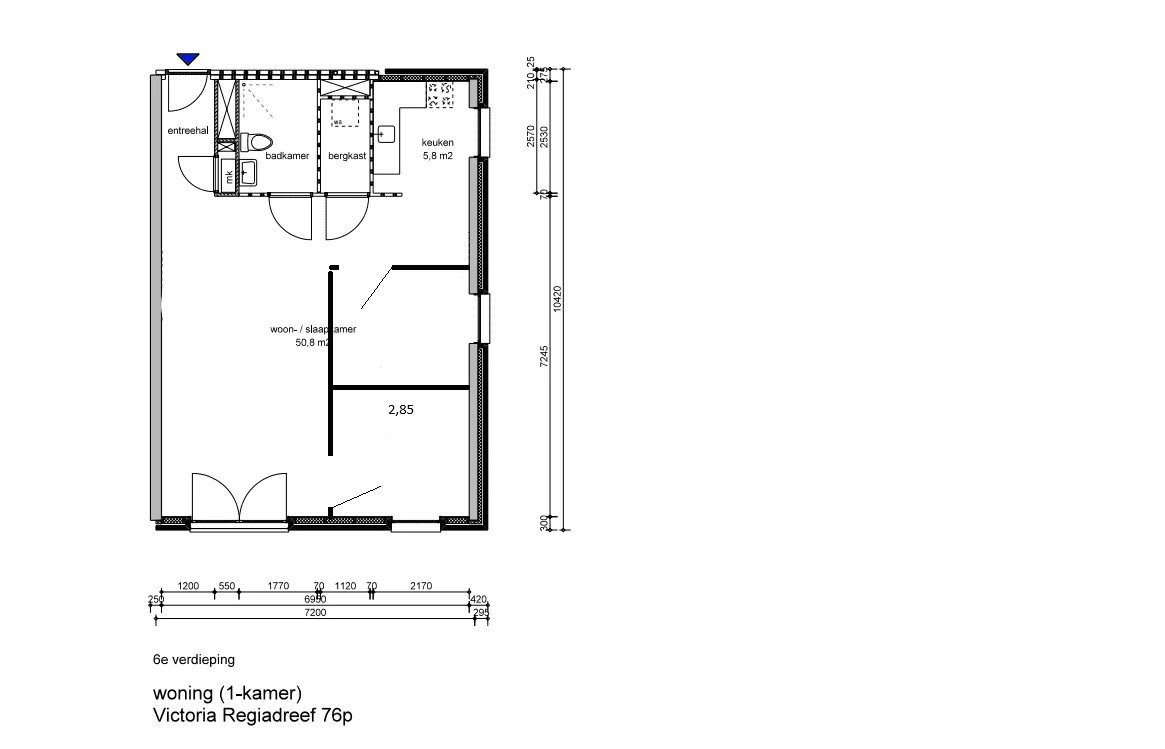
67.29m²

Woonoppervlakte

🛏️

1

Kamers

Leegstand

Status

🌟

A

Energielabel

Lees alstublieft de voorwaardentekst.

De huidige huurder heeft twee extra kamers laten bouwen van 2,85 bij 2,85 meter, waardoor er nu een slaapkamer en een werkkamer aanwezig zijn.

Wil je wonen één van de groenste wijken van Utrecht? Dan is dit appartementencomplex in Overvecht iets voor jou! Op zowel de vierde als de zesde verdieping van de Clophaemer zit een dakterras waar je heerlijk van de zon kunt genieten. Beneden in de kelder is een fietsenstalling. Heb je een auto? Dan is het mogelijk om een parkeerplaats te huren in de parkeergarage onder het complex. En wat ook handig is: de supermarkt zit om de hoek en in de buurt vind je bovendien allerlei eettentjes, Ideaal toch? Dit pand is een mix van regulier- en begeleid wonen.

Let op!    Bekijk in dit overzicht met welk inkomen je in aanmerking komt voor deze woning.

Als je niet kunt aantonen dat je hieraan voldoet, is het helaas niet mogelijk om deze woning te huren. 

📋 Specificaties

Type

Woonruimte

Soort woning

Galerijflat

Verdieping

6

Lift

✅ Ja

💰 Prijsopbouw

Subsidiabele servicekosten €24,00
Niet subsidiabele servicekosten €33,90

📍 Locatie

Kaart laden...

🚉

OV

5 min lopen naar station

🏬

Winkels

2 min lopen

🏫

Scholen

Meerdere binnen 1km

🌳

Park

10 min lopen

✅ Selectiecriteria

U bent jonger dan 28 jaar
Je inkomen is niet hoger dan € 49669
Je inkomen is niet hoger dan € 54847
Er geldt een minimuminkomen
Meld je aan