Biltstraat 160 3572BN Utrecht

Biltstraat 160
3572BN Utrecht, Wittevrouwen

€787,83

Per maand

Interesse in dit type woning?

Ontvang direct bericht als er nieuwe woningen beschikbaar komen die bij uw woonwensen passen.

Meld je aan voor woningalerts

Gratis en vrijblijvend

Historische informatie

Deze huurwoning was beschikbaar voor reacties van 04-07-2023 tot 07-07-2023. Deze woning is niet meer beschikbaar voor nieuwe reacties.

🏠

40m²

Woonoppervlakte

🛏️

1

Kamers

Verhuurd

Status

🌟

C

Energielabel

Hip wonen in Utrecht. Dat kan goed in deze buurt. Biltstraat 160 is gelegen in de buurt Wittevrouwen. De buurt heeft naar verhouding veel jonge inwoners van tussen de 25 en 44 jaar. Verder is het een betrekkelijk rustige buurt gekeken naar de bevolkingsdichtheid.

De woning goed bereikbaar met veel voorzieningen in de buurt. Gesitueerd op fietsafstand van het centrum van Utrecht, loopafstand van een supermarkt en loopafstand van een treinstation. Daarnaast is de dichtstbijzijnde uitvalsweg in de nabije omgeving op slechts 4 minuten rijden.

📋 Specificaties

Type

Woonruimte

Soort woning

Portiekwoning

Verdieping

1

Lift

❌ Nee

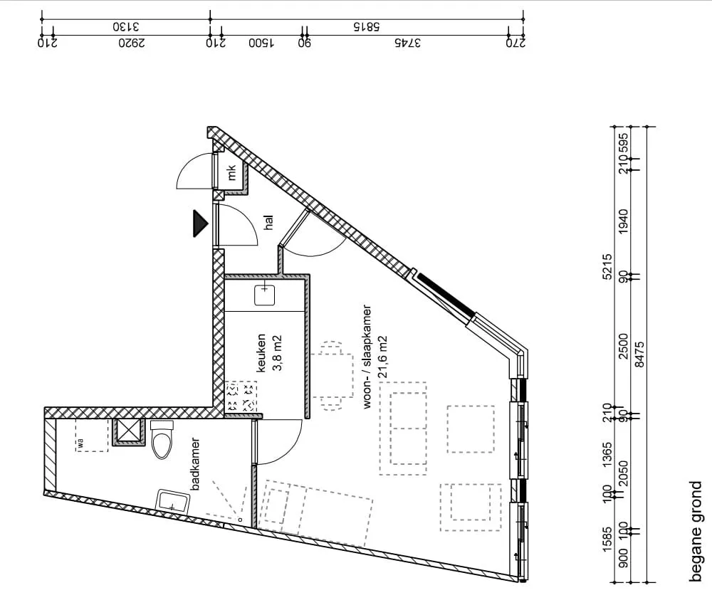
🏠 Vertrekken

Woon-/slaapkamer 1x (22m²)
Keuken 1x (4m²)

💰 Prijsopbouw

Subsidiabele servicekosten €17,93
Niet subsidiabele servicekosten €130,23
Water €0,00
Warmte €0,00

📍 Locatie

Kaart laden...

🚉

OV

5 min lopen naar station

🏬

Winkels

2 min lopen

🏫

Scholen

Meerdere binnen 1km

🌳

Park

10 min lopen

✅ Selectiecriteria

Meld je aan