Terug Burgemeester Fockema Andreaelaan 416
Burgemeester Fockema Andreaelaan 416 3582KZ Utrecht

Burgemeester Fockema Andreaelaan 416
3582KZ Utrecht, Rubenslaan en omgeving

€862,00

Per maand

Interesse in dit type woning?

Ontvang direct bericht als er nieuwe woningen beschikbaar komen die bij uw woonwensen passen.

Meld je aan voor woningalerts

Gratis en vrijblijvend

Historische informatie

Deze huurwoning was beschikbaar voor reacties van 23-10-2025 tot 30-10-2025. Deze woning is niet meer beschikbaar voor nieuwe reacties.

🏠

53.1m²

Woonoppervlakte

🛏️

3

Kamers

Leegstand

Status

🌟

C

Energielabel

Fliednerhof te Utrecht

Let op! Dit betreft een seniorencomplex waar een doelgroep wordt gehanteerd van minimaal 65 jaar of ouder. Indien u jonger bent dan 65 jaar, komt u helaas niet in aanmerking voor een woning in dit complex.

Het complex

Appartementencomplex ‘Fliednerhof’ is gelegen in Utrecht en bestaat uit 66 zelfstandige appartementen. Het complex grenst aan Zorgcentrum Swellengrebel. Binnen Swellengrebel kunt u gebruik maken van de verschillende diensten zoals het afnemen van zorg en maaltijden, maar ook kunt u terecht bij de lokale kapper, pedicure en fysiotherapeut.


Alle appartementen liggen rondom een beschutte binnentuin. U fiets of scootmobiel kunt u kwijt in de gemeenschappelijke berging.

Omgeving en bereikbaarheid

Het complex is gelegen in de provincie Utrecht en bevindt zich de stad Utrecht. De staat staat bekend om zijn rijke historie, bruisende cultuur en levendige sfeer. Op slechts enkele kilometers afstand ligt is het centrum van Utrecht te vinden.

Voor senioren die in dit complex wonen, zijn diverse faciliteiten binnen handbereik. Op loopafstand vinden zij een supermarkt waar zij hun dagelijkse boodschappen kunnen doen. Wanneer u het complex uit loopt vindt u aan de linkerzijde het Diakonessenhuis.

Wie zich wat verder wil verplaatsen, heeft goede mogelijkheden met het openbaar vervoer. De stad Utrecht beschikt over meerdere treinstations. Binnen korte afstand van het seniorencomplex zijn diverse bushaltes te vinden, waardoor het reizen binnen de stad en naar omliggende gebieden eenvoudig en toegankelijk is.

Voor ontspanning en recreatie zijn er parken en wandelgebieden in de buurt, waar senioren kunnen genieten van de groene omgeving. Daarnaast zijn er diverse restaurants en cafés te vinden, waar zij samen kunnen komen met vrienden en familie. Met de combinatie van goede voorzieningen, toegankelijkheid tot het openbaar vervoer en de levendige sfeer van de stad Utrecht, is aan de Burgemeester Fockema Andreaelaan de ideale plek voor senioren om comfortabel en actief te wonen.

Voorwaarden

Wij hanteren inkomensvoorwaarden voor deze woning. Wij zullen daarom diverse officiële en actuele documenten van u vragen. Let er op dat u aanlevert wat gevraagd wordt, dat voorkomt teleurstelling achteraf.

Dit complex bestaat uit sociale huurwoningen. Hierbij is het minimale verzamelinkomen voor een eenpersoonshuishouden € 28.375,- en het maximale € 49.669,-. Voor een tweepersoonshuishouden geldt een minimum verzamelinkomen van € 38.501,- tot en met een maximum van € 54.847,-

De woning wordt toegewezen aan de meest passende kandidaat. Dat is in ieder geval een kandidaat die de volledige inschrijvingsprocedure heeft doorlopen.

Inschrijven

De inschrijving voor de woningen in dit complex verlopen niet via onze eigen website!
Het gehele verhuurproces hiervan verloopt via Woningnet. Op het moment dat er een woning in dit complex beschikbaar komt, zal deze op de website van Woningnet worden gepubliceerd.
Voor verder informatie verwijzen we u naar https://utrecht.mijndak.nl/. Hier vindt u onder het kopje “informatie” alle benodigde informatie.

Let op de getoonde foto’s geven slechts een impressie van een soortgelijke woning.

📋 Specificaties

Type

Woonruimte

Soort woning

Galerijflat

Verdieping

5

Lift

✅ Ja

🏠 Vertrekken

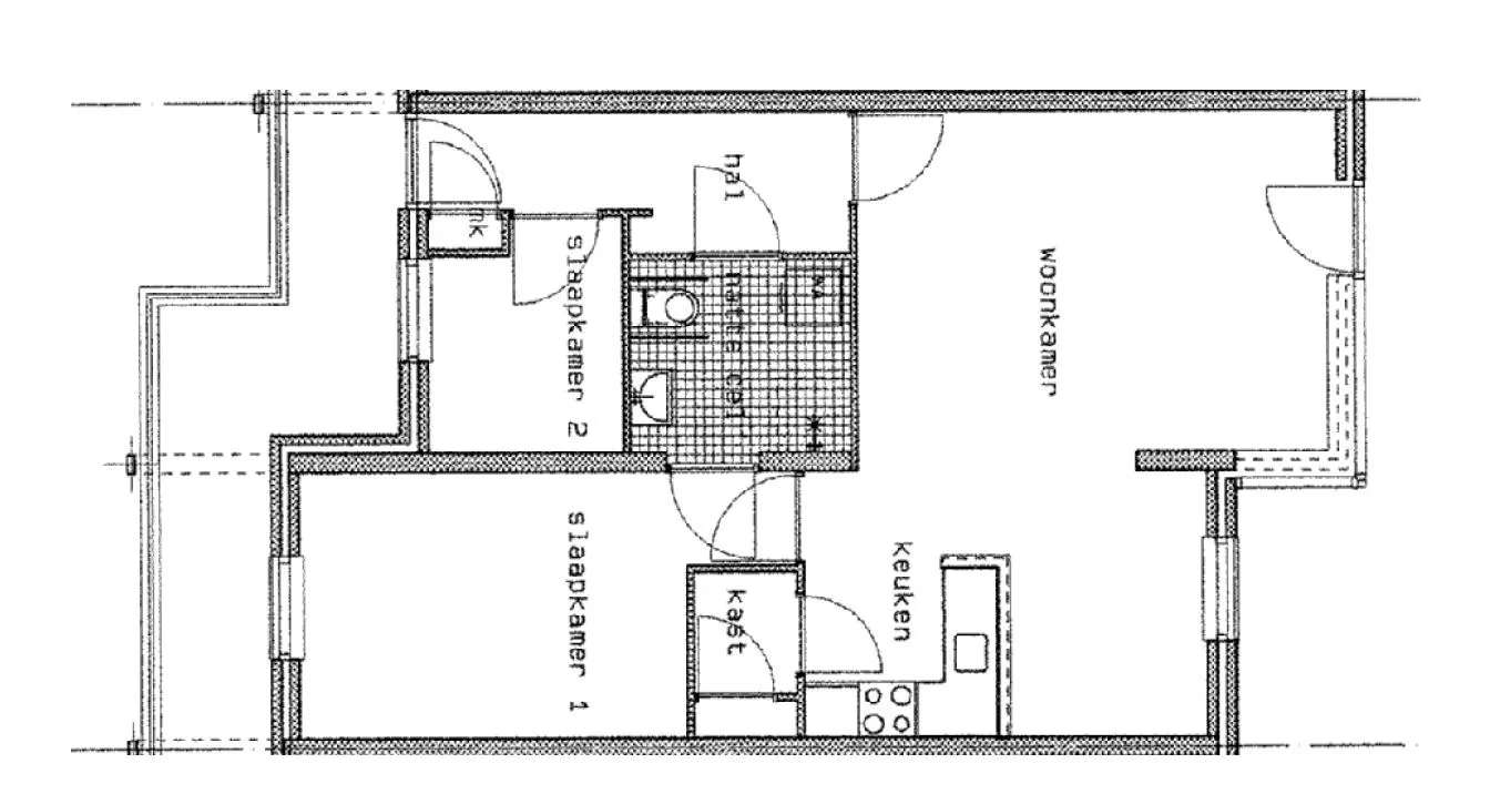
Slaapkamer 3x (16.9m²)
Berging 1x (3m²)
Badkamer 1x (4m²)
Keuken 1x (7.7m²)
Woonkamer 1x (24.5m²)

💰 Prijsopbouw

Subsidiabele servicekosten €24,00
Niet subsidiabele servicekosten €31,00

📍 Locatie

Kaart laden...

🚉

OV

5 min lopen naar station

🏬

Winkels

2 min lopen

🏫

Scholen

Meerdere binnen 1km

🌳

Park

10 min lopen

✅ Selectiecriteria

2
Je inkomen is niet hoger dan € 49669
Je inkomen is niet hoger dan € 54847
Jij of je partner bent 55 jaar of ouder
Er geldt een minimuminkomen
Alleen geschikt voor huishoudens zonder kinderen
Meld je aan