Dorpsstraat 23 B 3451BJ Vleuten

Dorpsstraat 23 B
3451BJ Vleuten, Vleuten

€720,79

Per maand

Interesse in dit type woning?

Ontvang direct bericht als er nieuwe woningen beschikbaar komen die bij uw woonwensen passen.

Meld je aan voor woningalerts

Gratis en vrijblijvend

Historische informatie

Deze huurwoning was beschikbaar voor reacties van 20-01-2026 tot 27-01-2026. Deze woning is niet meer beschikbaar voor nieuwe reacties.

🏠

41.96m²

Woonoppervlakte

🛏️

2

Kamers

Leegstand

Status

🌟

D

Energielabel

Vleuten-De Meern is een van de 10 woonwijken van Utrecht. Het bestaat naast de oude woonkernen Vleuten en De Meern uit Haarzuilens, Rijnenburg, Oudenrijn, Vleuterweide en Veldhuizen. Samen met woonwijk Leidsche Rijn vormt Vleuten–De Meern het stadsdeel ten westen van het Amsterdam-Rijnkanaal. De naam van dit stadsdeel is ook Leidsche Rijn.

Indeling

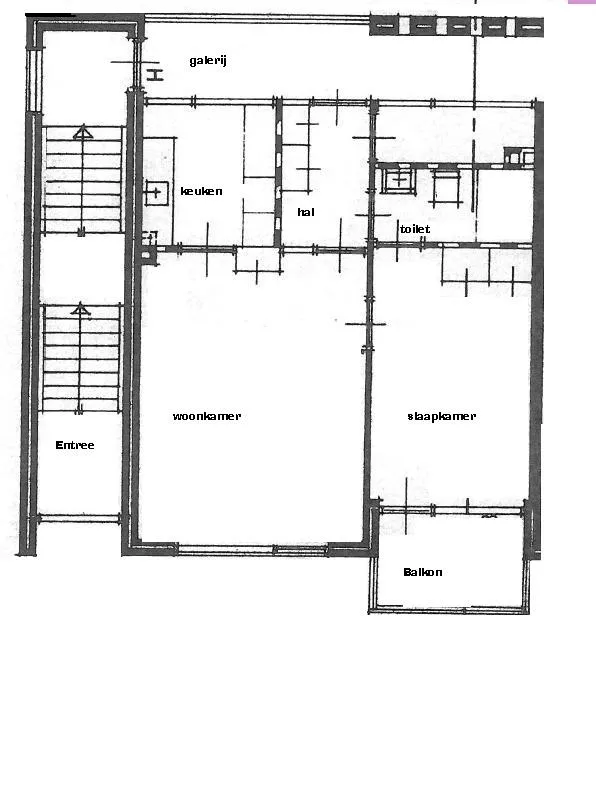
De woning ligt op de eerste etage aan een galerij en is via het trappenhuis te betreden. Er is geen lift aanwezig. 

U komt de woning binnen in de hal. De hal geeft toegang tot de woonkamer met open keuken en de badkamer met douche en toilet. In de woonkamer zit de deur naar de slaapkamer. Vanuit de slaapkamer kunt u naar het balkon, gelegen op het Zuiden. 

Bijzonderheden op een rij:

  • Geen lift;
  • Elektrisch koken = 2 fase Perilex;
  • Wasmachine aansluiting in de keuken;
  • Gemeenschappelijke (fietsen) berging;
  • Voorzieningen nabije omgeving: winkelcentrum;
  • Overnames: nette woning, laminaatvloer ter overname. Niet-standaard overname is wastafelmeubel en kookplaat;

Heeft u interesse en wilt u de woning bezichtigen?

  • De eerste 5 geselecteerde kandidaten ontvangen een mailbericht van WoningNet om de woning te gaan bezichtigen.
  • U kunt de woning bekijken met maximaal 2 personen
  • Houdt u er dan rekening mee dat er een bezichtiging plaats zal vinden op 30 januari 2026.
  • Let op: de woning is onder voorbehoud per genoemde datum beschikbaar
  • U kunt nog tot 1 dag voor bezichtiging bericht krijgen dat u de volgende dag hierbij aanwezig dient te zijn.
  • Als u niet zelf naar de bezichtiging kunt komen, kunt u iemand anders machtigen. Geef via verhuur@cazaswonen.nl door wie namens u de woning komt bezichtigen.
  • Bij de bezichtiging is een verhuurmakelaar en/of de vertrekkende huurder aanwezig.

📋 Specificaties

Type

Woonruimte

Soort woning

Galerijflat

Verdieping

1

Lift

❌ Nee

🏠 Vertrekken

Berging 1x (5m²)
Keuken 1x (5.49m²)
Slaapkamer 1x (12.22m²)
Woonkamer 1x (19.25m²)

💰 Prijsopbouw

Subsidiabele servicekosten €7,50
Niet subsidiabele servicekosten €13,90
Water €15,50

📍 Locatie

Kaart laden...

🚉

OV

5 min lopen naar station

🏬

Winkels

2 min lopen

🏫

Scholen

Meerdere binnen 1km

🌳

Park

10 min lopen

✅ Selectiecriteria

Je inkomen is niet hoger dan € 51537
Je inkomen is niet hoger dan € 56910
Meld je aan