Rooseveltweg 380 6707GW Wageningen

Rooseveltweg 380
6707GW Wageningen, De Buurt-Oost

€873,51

Per maand

Interesse in dit type woning?

Ontvang direct bericht als er nieuwe woningen beschikbaar komen die bij uw woonwensen passen.

Meld je aan voor woningalerts

Gratis en vrijblijvend

Historische informatie

Deze huurwoning was beschikbaar voor reacties van 16-04-2026 tot 20-04-2026. Deze woning is niet meer beschikbaar voor nieuwe reacties.

🏠

77.4m²

Woonoppervlakte

🛏️

4

Kamers

Leegstand

Status

🌟

B

Energielabel

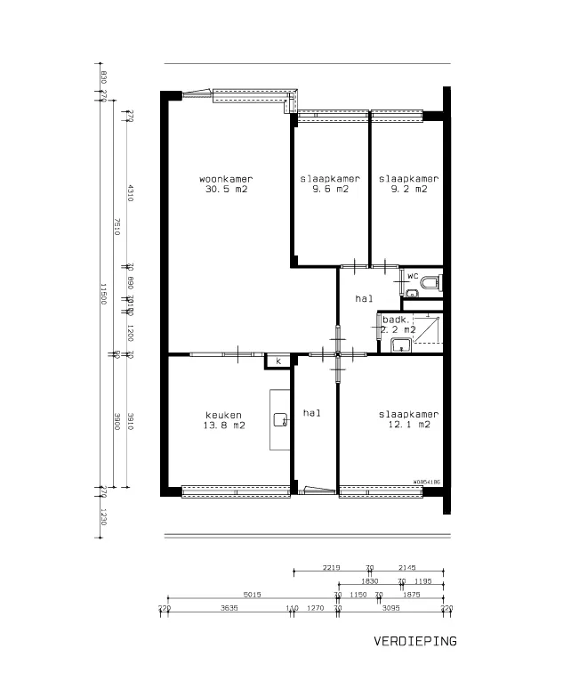
Ruim appartement aan de Rooseveltweg 380 te Wageningen. Deze woning ligt op de 2e etage en er is hier geen lift aanwezig in dit wooncomplex. De woning heeft een woonkamer van ruim 30m2 en een keuken van bijna 14m2. In de keuken heeft u ruimte voor een keukentafel met stoelen, tevens zit in de keuken de wasmachine aansluiting. Het appartement beschikt over 3 ruime slaapkamers. Het balkon ligt op het Westen, dit houdt in dat u middag en avond zon heeft op uw balkon. Op de begane grond heeft u nog een fietsenberging van ongeveer 11m2.

In de buurt van uw woning zijn wat parkeerplaatsen. Op de fiets bent u zo bij de supermarkt.

 

📋 Specificaties

Type

Woonruimte

Soort woning

Galerijflat

Verdieping

2

Lift

❌ Nee

🏠 Vertrekken

Badkamer 1x (2.24m²)
Slaapkamer 3x (30.84m²)
Berging 1x (11m²)
Keuken 1x (13.84m²)
Woonkamer 1x (30.48m²)

💰 Prijsopbouw

Warmte €121,00
Niet subsidiabele servicekosten €39,49

📍 Locatie

Kaart laden...

🚉

OV

5 min lopen naar station

🏬

Winkels

2 min lopen

🏫

Scholen

Meerdere binnen 1km

🌳

Park

10 min lopen

✅ Selectiecriteria

Toewijzing volgens huurbeleid Woningstichting Wageningen
Meld je aan