Leeuweriksweide 83 6708LE Wageningen

Leeuweriksweide 83
6708LE Wageningen, De Weiden

€739,01

Per maand

Interesse in dit type woning?

Ontvang direct bericht als er nieuwe woningen beschikbaar komen die bij uw woonwensen passen.

Meld je aan voor woningalerts

Gratis en vrijblijvend

Historische informatie

Deze huurwoning was beschikbaar voor reacties van 18-03-2026 tot 20-03-2026. Deze woning is niet meer beschikbaar voor nieuwe reacties.

🏠

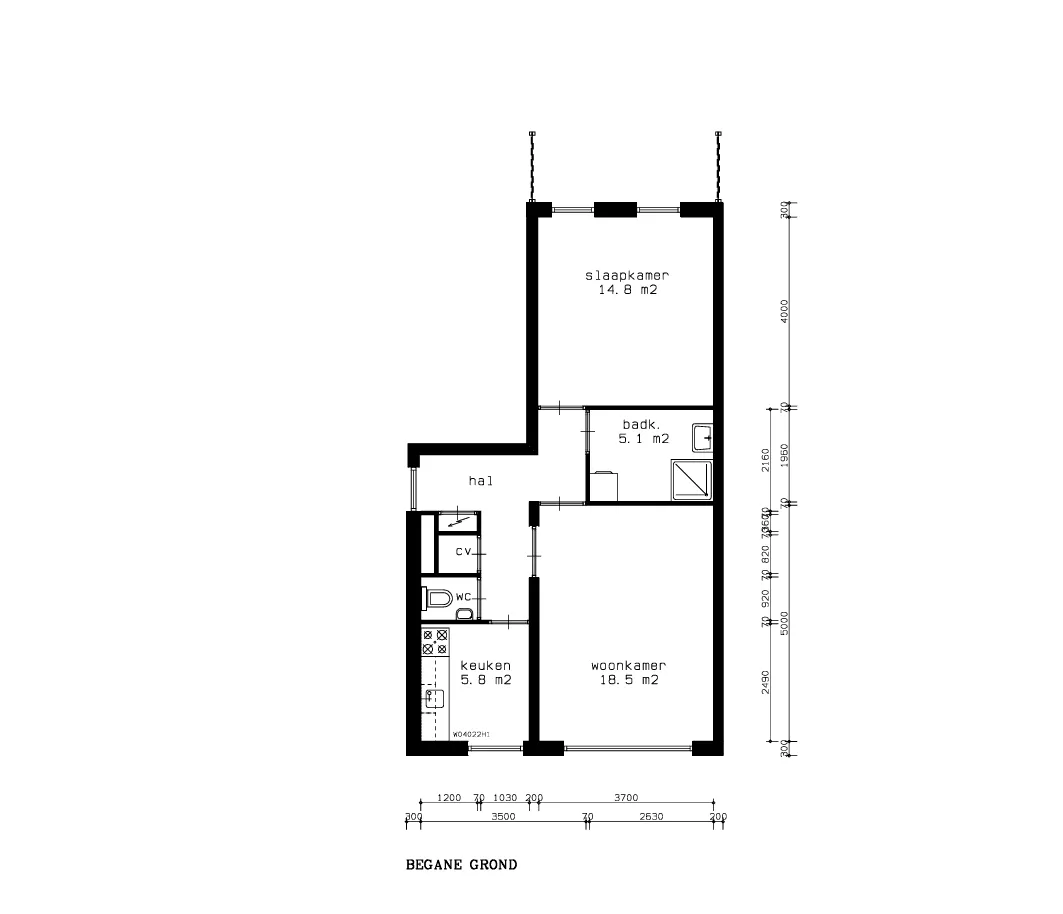
44.07m²

Woonoppervlakte

🛏️

2

Kamers

Leegstand

Status

🌟

B

Energielabel

Een comfortabel appartement op de begane grond, ideaal gelegen op korte fietsafstand van het centrum van Wageningen. Het appartement beschikt over een een prettige indeling met voldoende lichtinval. Voorzieningen zoals winkels en openbaar vervoer bevinden zich op korte afstand. Een ideale woning voor wie centraal wil wonen.

 

 

📋 Specificaties

Type

Woonruimte

Soort woning

Portiekflat

Verdieping

0

Lift

❌ Nee

🏠 Vertrekken

Berging 1x (3m²)
Badkamer 1x (5.13m²)
Keuken 1x (5.79m²)
Slaapkamer 1x (14.77m²)
Woonkamer 1x (18.38m²)

💰 Prijsopbouw

Niet subsidiabele servicekosten €25,99

📍 Locatie

Kaart laden...

🚉

OV

5 min lopen naar station

🏬

Winkels

2 min lopen

🏫

Scholen

Meerdere binnen 1km

🌳

Park

10 min lopen

✅ Selectiecriteria

Uitsluitend voor huishoudens zonder inwonende kinderen
Toewijzing volgens huurbeleid Woningstichting Wageningen
2
Meld je aan