Stadlanderweg 3 1502EA Zaandam

Stadlanderweg 3
1502EA Zaandam, Rosmolenbuurt Oost

€719,43

Per maand

Interesse in dit type woning?

Ontvang direct bericht als er nieuwe woningen beschikbaar komen die bij uw woonwensen passen.

Meld je aan voor woningalerts

Gratis en vrijblijvend

Historische informatie

Deze huurwoning was beschikbaar voor reacties van 09-04-2026 tot 16-04-2026. Deze woning is niet meer beschikbaar voor nieuwe reacties.

🏠

57.11m²

Woonoppervlakte

🛏️

2

Kamers

Leegstand

Status

🌟

C

Energielabel

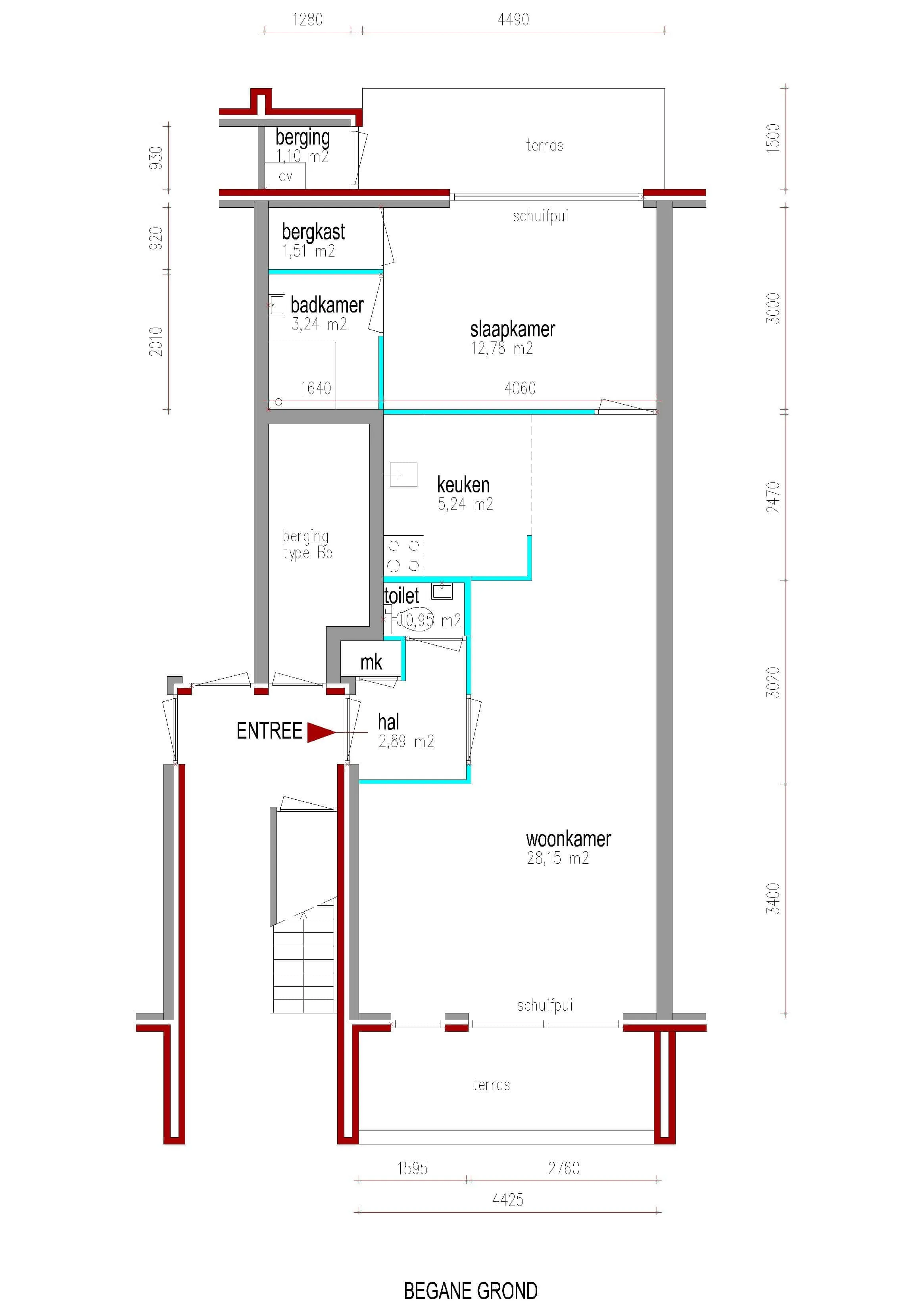
Benedenwoning met tuin aan het water 

Woning

  • Eigen entree.
  • Hal.
  • Toilet.
  • Ruime woonkamer met aan de voorzijde een schuifpui naar het terras op het zuiden.
  • De keuken bevindt zich centraal in het appartement en kan hierdoor wat donker zijn.
  • Aan de achterzijde ligt de slaapkamer met toegang tot de badkamer en een vaste kast.
  • Badkamer voorzien van douchehoek, wastafel en de aansluiting voor de wasmachine.
  • De achtertuin ligt aan een sloot en is gelegen op het noorden.
  • Om de hoek is een eigen berging.

Woonomgeving

  • Gelegen op het land van Middelhoven.
  • Dit is een rustige, autoluwe en groene wijk op loopafstand (10 min) van het centrum van Zaandam.
  • Parkeren kan gratis.
  • Een bushalte met een rechtstreekse verbinding ligt op 5 minuten lopen.
  • De parkeerplaatsen in de straat voor de deur zijn openbaar terrein en niet per se toegeëigend aan de woning. 

Aanvullende informatie

  • Er is mechanische ventilatie aanwezig.
  • Wanden worden behangklaar opgeleverd. 
  • Let op! Elektrisch koken, 2-fase.
  • Let op! De woning heeft 1 slaapkamer, alleen reageren zonder kinderen.

De bezichtiging vind plaats op donderdag 23 april om 12:45 uur.

 

📋 Specificaties

Type

Woonruimte

Soort woning

Portiekwoning

Verdieping

0

Lift

❌ Nee

🏠 Vertrekken

Badkamer 1x (3.24m²)
Keuken 1x (5.24m²)
Slaapkamer 1x (12.78m²)
Woonkamer 1x (28.15m²)

💰 Prijsopbouw

Niet subsidiabele servicekosten €6,41

📍 Locatie

Kaart laden...

🚉

OV

5 min lopen naar station

🏬

Winkels

2 min lopen

🏫

Scholen

Meerdere binnen 1km

🌳

Park

10 min lopen

✅ Selectiecriteria

is groter of gelijk aan 1
maximaal € 51537
maximaal € 56910
2
Er geldt een minimuminkomen
Meld je aan