Stadlanderweg 8 1502EB Zaandam

Stadlanderweg 8
1502EB Zaandam, Rosmolenbuurt Oost

€719,43

Per maand

Interesse in dit type woning?

Ontvang direct bericht als er nieuwe woningen beschikbaar komen die bij uw woonwensen passen.

Meld je aan voor woningalerts

Gratis en vrijblijvend

Historische informatie

Deze huurwoning was beschikbaar voor reacties van 09-04-2026 tot 16-04-2026. Deze woning is niet meer beschikbaar voor nieuwe reacties.

🏠

73.54m²

Woonoppervlakte

🛏️

3

Kamers

Leegstand

Status

🌟

C

Energielabel

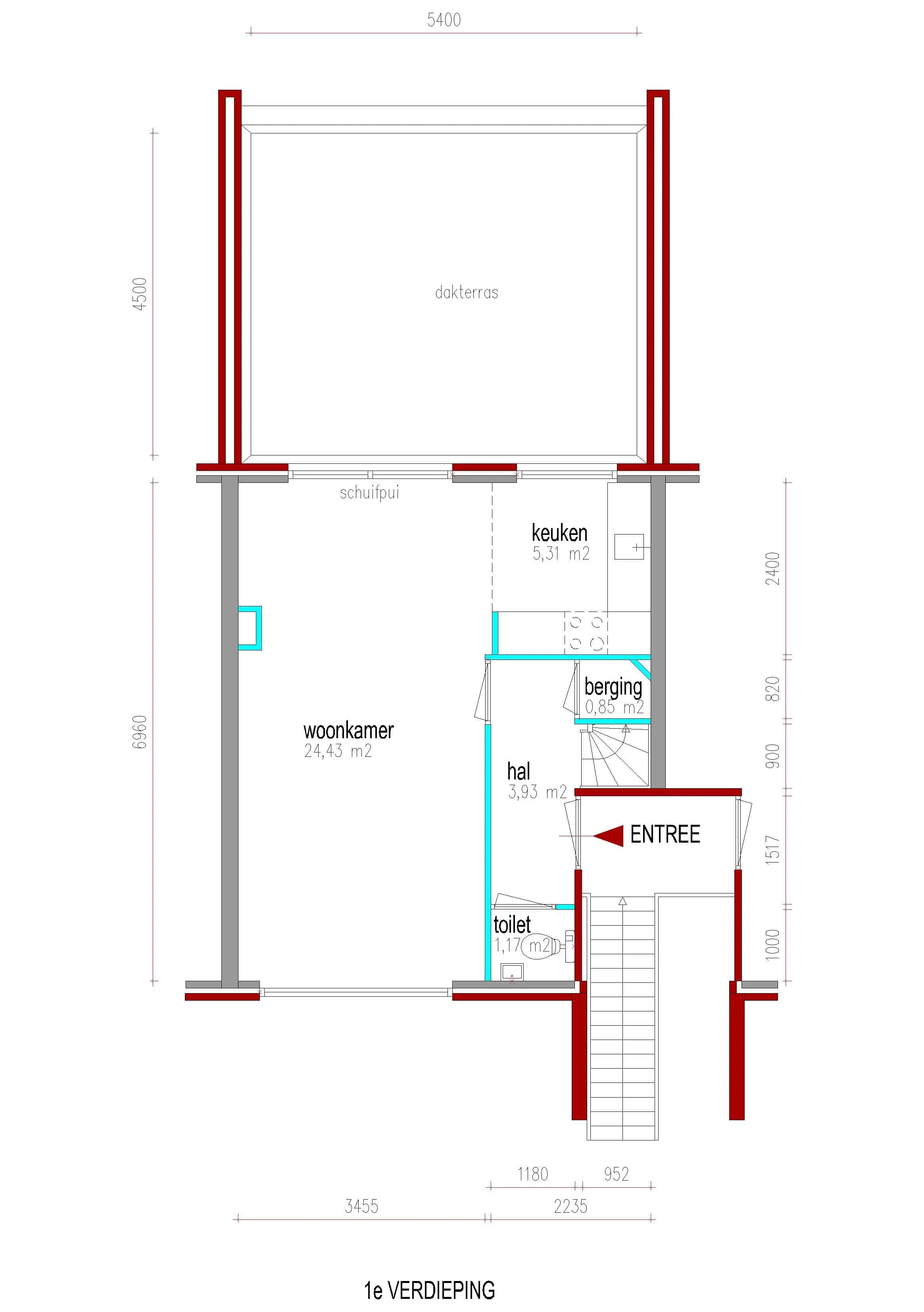
Woning

  • Maisonnette gelegen op de eerste en tweede verdieping.
  • Via een open portiek is de hal bereikbaar met het toilet en de trapopgang.
  • Lichte doorzonwoonkamer met open keuken.
  • Dakterras (ca. 24m2) gelegen op het zuiden.
  • Op de eerste verdieping bevinden zich twee ruime slaapkamers en de badkamer.
  • Badkamer voorzien van douchehoek, wastafel en de aansluiting voor de wasmachine.
  • De slaapkamers zijn voorzien van een schuin dak met dakraam.

 

Woonomgeving

  • Gelegen op het land van Middelhoven.
  • Dit is een rustige, autoluwe en groene wijk op loopafstand (10 min) van het centrum van Zaandam.
  • Parkeren kan gratis.
  • Een bushalte met een rechtstreekse verbinding ligt op 5 minuten lopen.
  • De parkeerplaatsen in de straat voor de deur zijn openbaar terrein en niet per se toegeëigend aan de woning. 

Aanvullende informatie

  • Er is mechanische ventilatie aanwezig.
  • Wanden worden behangklaar opgeleverd. 
  • Nieuw keukenblok.
  • Let op! Elektrisch koken, 2-fase.
  • Aparte berging en meterkast op de begane grond.

De bezichtiging vind plaats op donderdag 23 april om 13:15 uur.

📋 Specificaties

Type

Woonruimte

Soort woning

Portiekwoning

Verdieping

1

Lift

❌ Nee

🏠 Vertrekken

Badkamer 1x (4.28m²)
Keuken 1x (5.31m²)
Slaapkamer 2x (24.68m²)
Woonkamer 1x (24.43m²)

💰 Prijsopbouw

Niet subsidiabele servicekosten €6,41

📍 Locatie

Kaart laden...

🚉

OV

5 min lopen naar station

🏬

Winkels

2 min lopen

🏫

Scholen

Meerdere binnen 1km

🌳

Park

10 min lopen

✅ Selectiecriteria

is groter of gelijk aan 1
maximaal € 51537
maximaal € 56910
2
Er geldt een minimuminkomen
Meld je aan