Karploeg 103 2761WD Zevenhuizen

Karploeg 103
2761WD Zevenhuizen, Verspreide bebouwing Zuidplaspolder Zevenhuizen

€971,39

Per maand

Interesse in dit type woning?

Ontvang direct bericht als er nieuwe woningen beschikbaar komen die bij uw woonwensen passen.

Meld je aan voor woningalerts

Gratis en vrijblijvend

Historische informatie

Deze huurwoning was beschikbaar voor reacties van 11-02-2026 tot 16-02-2026. Deze woning is niet meer beschikbaar voor nieuwe reacties.

🏠

48.5m²

Woonoppervlakte

🛏️

2

Kamers

In ontwikkeling

Status

🌟

A+++

Energielabel

Nieuwbouwwoning te huur in Swanladriehoek – Zevenhuizen

Bent u op zoek naar een moderne en comfortabele woning in een rustige en groene wijk? In de nieuwe buurt Swanladriehoek in Zevenhuizen wordt het nieuwbouwcomplex De Ploeg gebouwd. In dit complex komt een fijne 2 kamerwoning beschikbaar. Deze woning is ideaal voor wie rustig wil wonen, maar toch alle voorzieningen dichtbij wil hebben.

Zevenhuizen is een vriendelijk dorp in de gemeente Zuidplas, gelegen tussen Rotterdam en Gouda.

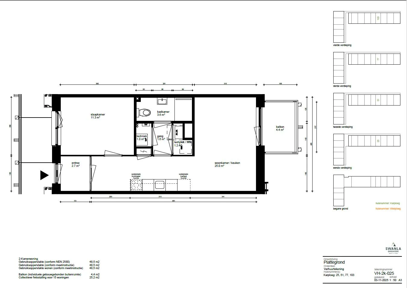
Indeling van de woning

  • Entree / hal
  • Woonkamer met open keuken
  • Toegang tot het balkon
  • 1 slaapkamer
  • Badkamer
  • Binnenberging met aansluiting voor de wasmachine
  • Gemeenschappelijke fietsenberging

Bijzonderheden

  • De woning ligt op de 4e verdieping
  • Balkon op het zuiden
  • Energielabel A+++
  • Verwarming via warmtepomp
    • Kosten: vastrecht + huur warmtepomp (ca. € 50 per maand, prijspeil januari 2026)

Overige informatie

  • Servicekosten kunnen nog iets wijzigen
  • Foto’s en plattegronden zijn een impressie; hieraan kunnen geen rechten worden ontleend
  • Verwachte oplevering: juni 2026
  • In mei wordt een open huis georganiseerd voor kandidaten aan wie een woning is toegewezen
  • Fysieke bezichtiging is niet mogelijk omdat het complex nog in aanbouw is
  • U maakt uw keuze op basis van de plattegronden en informatie in de advertentie
  • De toewijzing gebeurt digitaal

 

 

📋 Specificaties

Type

Woonruimte

Soort woning

Galerijflat

Verdieping

4

Lift

✅ Ja

🏠 Vertrekken

Badkamer/toilet 1x (3.6m²)
Balkon 1x (4m²)
Slaapkamer 1x (11m²)
Woonkamer/keuken 1x (25m²)

💰 Prijsopbouw

Niet subsidiabele servicekosten €38,46

📍 Locatie

Kaart laden...

🚉

OV

5 min lopen naar station

🏬

Winkels

2 min lopen

🏫

Scholen

Meerdere binnen 1km

🌳

Park

10 min lopen

✅ Selectiecriteria

maximaal 2
Voor de inkomenseisen die voor deze woning gelden verwijzen wij u naar de pagina Huur-inkomentabel
meer dan € 29400
meer dan € 39925
tot 30 jaar
Je inkomen is niet hoger dan € 51537
Je inkomen is niet hoger dan € 56910
Meld je aan