Karploeg 75 2761WD Zevenhuizen

Karploeg 75
2761WD Zevenhuizen, Verspreide bebouwing Zuidplaspolder Zevenhuizen

€751,66

Per maand

Interesse in dit type woning?

Ontvang direct bericht als er nieuwe woningen beschikbaar komen die bij uw woonwensen passen.

Meld je aan voor woningalerts

Gratis en vrijblijvend

Historische informatie

Deze huurwoning was beschikbaar voor reacties van 25-02-2026 tot 01-03-2026. Deze woning is niet meer beschikbaar voor nieuwe reacties.

🏠

48.5m²

Woonoppervlakte

🛏️

2

Kamers

In ontwikkeling

Status

🌟

A+++

Energielabel

Nieuwbouwwoning te huur in Swanladriehoek – Zevenhuizen

Bent u op zoek naar een comfortabele en moderne woning in een groene en rustige omgeving? In de nieuwe wijk Swanladriehoek in Zevenhuizen wordt op dit moment het mooie nieuwbouwcomplex De Ploeg gebouwd. Deze 2 kamerwoning biedt alles voor een fijn en rustig thuis.

Zevenhuizen is een vriendelijk dorp in de gemeente Zuidplas, tussen Rotterdam en Gouda. Hier woont u rustig, maar met alle voorzieningen in de buurt.

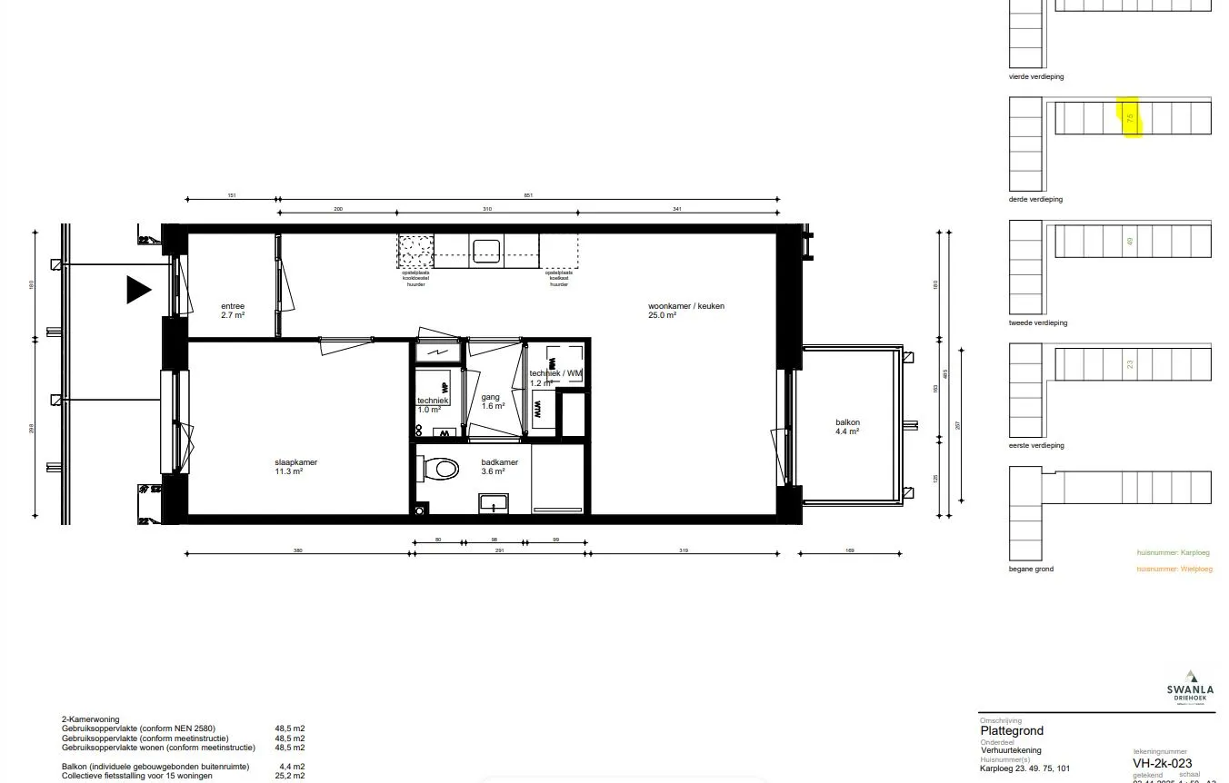
Indeling van de woning

  • Entree / hal
  • Woonkamer met open keuken
  • Toegang tot het balkon
  • 1 slaapkamer
  • Badkamer
  • Binnenberging met aansluiting voor de wasmachine

Bijzonderheden

  • Gelegen op de 3e verdieping
  • Balkon 
  • Energielabel A+++
  • De woning wordt verwarmd met een warmtepomp
    • Kosten: vastrecht + huur warmtepomp (ca. € 50 per maand, prijspeil januari 2026)

Voorwaarden

  • Verwachte sleuteloverdracht: juni 2026
  • In mei wordt er een open huis georganiseerd voor kandidaten die een woning toegewezen krijgen.
  • De toewijzing gebeurt digitaal.
    • Alle gevraagde documenten kunnen worden geüpload in uw dossier (indien mogelijk).
    • U ontvangt na sluiting van de advertentie nogmaals een verzoek om uw interesse kenbaar te maken en uw gegevens compleet te maken. Kandidaten die het niet lukt om documenten te uploaden krijgen een verzoek deze aan ons op te sturen (wij zullen de eerste kandidaat hiervoor benaderen).

 

Overige informatie

  • Servicekosten zijn onder voorbehoud van kleine wijzigingen.
  • Alle foto’s en plattegronden zijn slechts een impressie. Hieraan kunnen geen rechten worden ontleend.

 

📋 Specificaties

Type

Woonruimte

Soort woning

Galerijflat

Verdieping

3

Lift

✅ Ja

🏠 Vertrekken

Badkamer/toilet 1x (3.6m²)
Balkon 1x (4.4m²)
Slaapkamer 1x (11.3m²)
Woonkamer/keuken 1x (25m²)

💰 Prijsopbouw

Niet subsidiabele servicekosten €38,46

📍 Locatie

Kaart laden...

🚉

OV

5 min lopen naar station

🏬

Winkels

2 min lopen

🏫

Scholen

Meerdere binnen 1km

🌳

Park

10 min lopen

✅ Selectiecriteria

is groter of gelijk aan 1
is kleiner of gelijk aan 2
Voor de inkomenseisen die voor deze woning gelden verwijzen wij u naar de pagina Huur-inkomentabel
Jij en je partner zijn jonger dan 30 jaar
Je inkomen is niet hoger dan € 29400
Je inkomen is niet hoger dan € 39925
U bent tenminste 21 jaar
Meld je aan