Akonietenlaan 1 2121TR Bennebroek

Akonietenlaan 1
2121TR Bennebroek, Villawijk Het Duin

€996,88

Per maand

Interesse in dit type woning?

Ontvang direct bericht als er nieuwe woningen beschikbaar komen die bij uw woonwensen passen.

Meld je aan voor woningalerts

Gratis en vrijblijvend

Historische informatie

Deze huurwoning was beschikbaar voor reacties van 30-12-2025 tot 05-01-2026. Deze woning is niet meer beschikbaar voor nieuwe reacties.

🏠

61m²

Woonoppervlakte

🛏️

3

Kamers

Leegstand

Status

🌟

A

Energielabel

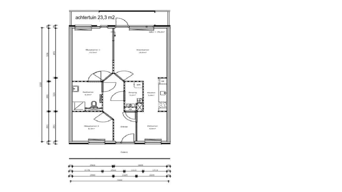
Lichte beneden hoekwoning met woonkamer met toegang naar de achtertuin, open keuken, twee slaapkamers, badkamer met toilet, technische ruimte met opstelling wasmachine,
cv-ketel en WTW.

Woning
- Elektrisch koken
- Open keuken
- Badkamer met toilet
- Achtertuin
- Vanuit slaapkamer 1 betreed u ook de badkamer
- Individuele berging op de begane grond
- Gratis parkeren in de straat

Schenkingen aan de nieuwe huurder, onderhoud huurder:

Doucheschermen, thermostaatkraan, douchesteun, wastafelmeubel,  1 hendel mengkraan, wand in Slaapkamer 1, planken in berging en technische ruimte, opberghok in achtertuin

In de buurt
De naam zegt het al ‘Oude kern”. Dit is dus het oorspronkelijke Bennebroek met veel authentieke en karakteristieke woningen uit de jaren 20, 30 maar ook van ver daarvoor. In de loop der tijd is dit uitgebreid met laagbouw uit de jaren 60 en 70. Het is een gemengde wijk waar met name gezinnen en ouderen wonen. Het valt onder de gemeente Bloemendaal en is een groene en compacte wijk. Het strand, de duinen, maar ook het centrum van Haarlem zijn binnen 20 minuten afstand met de auto. Voor het openbaar vervoer bent u aangewezen op de bus. Het dichtstbijzijnde treinstation is in Heemstede.

Voor uw boodschappen kunt u terecht in het kleine centrum van Bennebroek waar een Albert-Hein zit en wat lokale winkels zoals een groente boer en postkantoor. Voor de grotere winkelstraten zal u moeten uitwijken naar Heemstede, Haarlem of Hoofddorp. In de buurt zitten wel kapperszaken een ijssalon en een aantal restaurants.

Uitnodiging tot bezichtiging 
De eerste 15 kandidaten worden via woonservice uitgenodigd voor bezichtiging.
- De bezichtiging is ingepland op 15 januari 2026 om 14:15 uur (onder voorbehoud)

Een woning huren van Pré Wonen
Iedere woning van Pré Wonen wordt volgens de basiskwaliteit opgeleverd. Zelf knapt u de woning op naar uw zin en smaak. Denk hierbij aan het leggen van vloeren (minimaal 10 decibel reducerend), schilderen/behangen van muren, deuren, (raam)kozijnen en plafonds.

Een bestaande woning heeft altijd gebruikssporen van voorgaande huurder(s). Kijkt u onder Voorwaarden bij ‘Wat mag u van een woning van Pré Wonen verwachten’. Daar leest u wat de basiskwaliteit is en wat u van een woning van Pré Wonen mag verwachten.


Tot slot
De oplevering van de woning kan afwijken van de advertentietekst, de plattegrond, de foto’s en de bezichtiging in verband met eventuele werkzaamheden.

Aan deze advertentie kunt u geen rechten ontlenen.

 

📋 Specificaties

Type

Woonruimte

Soort woning

Galerijflat

Verdieping

0

Lift

✅ Ja

🏠 Vertrekken

Slaapkamer 2x (24m²)
Woonkamer 1x (26m²)

💰 Prijsopbouw

Subsidiabele servicekosten €0,00
Niet subsidiabele servicekosten €63,95

📍 Locatie

Kaart laden...

🚉

OV

5 min lopen naar station

🏬

Winkels

2 min lopen

🏫

Scholen

Meerdere binnen 1km

🌳

Park

10 min lopen

✅ Selectiecriteria

Uitsluitend voor huishoudens zonder inwonende kinderen
Voor de inkomenseisen die voor deze woning gelden verwijzen wij u naar de pagina Passend toewijzen
Meld je aan