Trajanushof 39 3453KM De Meern

Trajanushof 39
3453KM De Meern, Veldhuizen

€740,73

Per maand

Interesse in dit type woning?

Ontvang direct bericht als er nieuwe woningen beschikbaar komen die bij uw woonwensen passen.

Meld je aan voor woningalerts

Gratis en vrijblijvend

Historische informatie

Deze huurwoning was beschikbaar voor reacties van 27-10-2025 tot 03-11-2025. Deze woning is niet meer beschikbaar voor nieuwe reacties.

🏠

63.06m²

Woonoppervlakte

🛏️

2

Kamers

Leegstand

Status

🌟

A

Energielabel

De kleine eengezinswoning is gelegen in de Meern in de wijk Veldhuizen. Vleuten-De Meern is een van de 10 woonwijken van Utrecht. Het bestaat naast de oude woonkernen Vleuten en De Meern uit Haarzuilens, Rijnenburg, Oudenrijn, Vleuterweide en Veldhuizen. Samen met woonwijk Leidsche Rijn vormt Vleuten–De Meern het stadsdeel ten westen van het Amsterdam-Rijnkanaal. De naam van dit stadsdeel is ook Leidsche Rijn.

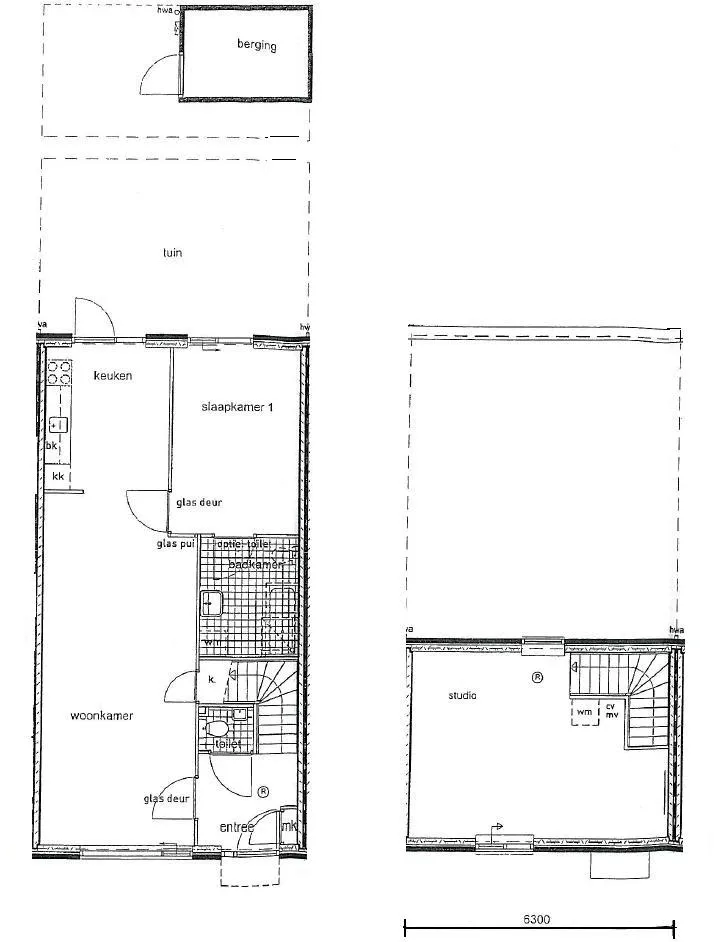
Indeling

U komt de woning binnen in de entree. Vanuit de entree heeft u toegang tot het toilet, de trap naar de eerste verdieping en de woonkamer met open keuken. De slaapkamer is gelegen op de begane grond en te bereiken vanuit de woonkamer. De badkamer is bereikbaar vanuit deze slaapkamer en de tuin is te bereiken vanuit de keuken.

Op de eerste verdieping bevindt zich een studio. Deze kan gebruikt worden als werkkamer of tweede slaapkamer.

Bijzonderheden op een rij:

  • Open keuken;
  • Elektrisch koken (2-fase perilex);
  • Wasmachine aansluiting in de badkamer;
  • Aparte berging;
  • Voorzieningen nabije omgeving: school en winkelcentrum;
  • Diverse overnames als: trapbekleding, afwasmachine, wasmachine en grote kledingkast.

 

Deze woning beschikt over een (ruime) tuin. De huurder is verantwoordelijk voor het onderhoud hiervan volgens de richtlijnen van het tuinenbeleid van Cazas Wonen.

Heeft u interesse en wilt u de woning bezichtigen?

  • De eerste 5 geselecteerde kandidaten ontvangen een mailbericht van WoningNet om de woning te gaan bezichtigen.
  • U kunt de woning bekijken met maximaal 2 personen.
  • Houdt u er dan rekening mee dat er een bezichtiging plaats zal vinden op 5 november 2025. 
  • Let op: de woning is onder voorbehoud per genoemde datum beschikbaar
  • U kunt nog tot 1 dag voor bezichtiging bericht krijgen dat u de volgende dag hierbij aanwezig dient te zijn.
  • Als u niet zelf naar de bezichtiging kunt komen, kunt u iemand anders machtigen. Geef via verhuur@cazaswonen.nl door wie namens u de woning komt bezichtigen.
  • Bij de bezichtiging is een verhuurmakelaar en vertrekkende huurder aanwezig.

📋 Specificaties

Type

Woonruimte

Soort woning

Hoekwoning

Verdieping

0

Lift

❌ Nee

🏠 Vertrekken

Berging 1x (5.9m²)
Badkamer 1x (6.4m²)
Keuken 1x (9.4m²)
Slaapkamer 1x (12.66m²)
Woonkamer 1x (28.7m²)

💰 Prijsopbouw

Subsidiabele servicekosten €0,00
Niet subsidiabele servicekosten €8,80

📍 Locatie

Kaart laden...

🚉

OV

5 min lopen naar station

🏬

Winkels

2 min lopen

🏫

Scholen

Meerdere binnen 1km

🌳

Park

10 min lopen

✅ Selectiecriteria

Je inkomen is niet hoger dan € 49669
Je inkomen is niet hoger dan € 54847
Er geldt een minimuminkomen
Meld je aan