Dr. Arienslaan 9 3454XC De Meern

Dr. Arienslaan 9
3454XC De Meern, De Meern-Zuid

€956,40

Per maand

Interesse in dit type woning?

Ontvang direct bericht als er nieuwe woningen beschikbaar komen die bij uw woonwensen passen.

Meld je aan voor woningalerts

Gratis en vrijblijvend

Historische informatie

Deze huurwoning was beschikbaar voor reacties van 14-04-2026 tot 21-04-2026. Deze woning is niet meer beschikbaar voor nieuwe reacties.

🏠

73.55m²

Woonoppervlakte

🛏️

4

Kamers

Leegstand

Status

🌟

A

Energielabel

Vleuten-De Meern is een van de 10 woonwijken van Utrecht. Het bestaat naast de oude woonkernen Vleuten en De Meern uit Haarzuilens, Rijnenburg, Oudenrijn, Vleuterweide en Veldhuizen. Samen met woonwijk Leidsche Rijn vormt Vleuten–De Meern het stadsdeel ten westen van het Amsterdam-Rijnkanaal. De naam van dit stadsdeel is ook Leidsche Rijn.

 

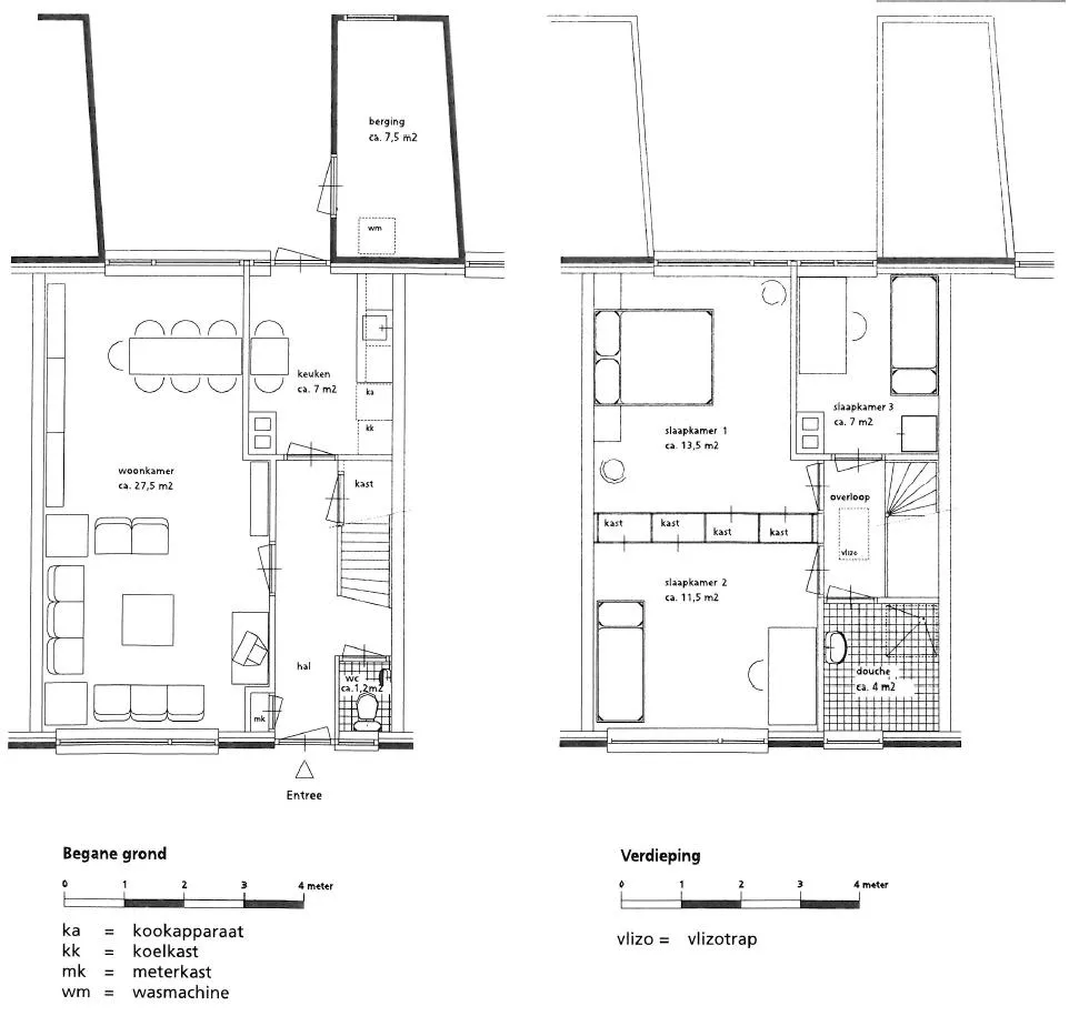
Indeling

Benedenverdieping:

U komt de woning binnen in de hal. Vanuit de hal heeft u toegang tot het toilet, de woonkamer en de afgesloten keuken. Ook kunt u hier de trap op naar de eerste etage. De keuken geeft toegang tot de achtertuin met berging, gelegen op het Westen.

Eerste etage/ zolder:

Op de eerste etage bevinden zich de drie slaapkamers en de badkamer. De zolder is met een vaste trap te betreden. 

 

Bijzonderheden op een rij:

  • Elektrisch koken = 2 fase Perilex; 
  • Afgesloten keuken;
  • Vaste trap naar zolder;
  • Wasmachine aansluiting op zolder;
  • Aparte berging;
  • Achtertuin op het Westen;
  • Zonnepanelen;
  • Voorzieningen nabije omgeving: school en rustige weg;
  • Nette woning, zonder overnames;

Deze woning beschikt over een (ruime) tuin. De huurder is verantwoordelijk voor het onderhoud hiervan volgens de richtlijnen van het tuinenbeleid van Cazas Wonen.

 

Heeft u interesse en wilt u de woning bezichtigen?

  • De eerste 7 geselecteerde kandidaten ontvangen een mailbericht van WoningNet om de woning te gaan bezichtigen.
  • U kunt de woning bekijken met maximaal 2 personen.
  • Houdt u er dan rekening mee dat er een bezichtiging plaats zal vinden op 29 april 2026. 
  • Let op: de woning is onder voorbehoud per genoemde datum beschikbaar.
  • U kunt nog tot 1 dag voor bezichtiging bericht krijgen dat u de volgende dag hierbij aanwezig dient te zijn.
  • Als u niet zelf naar de bezichtiging kunt komen, kunt u iemand anders machtigen. Geef via verhuur@cazaswonen.nl door wie namens u de woning komt bezichtigen.
  • Bij de bezichtiging is een verhuurmakelaar aanwezig.

📋 Specificaties

Type

Woonruimte

Soort woning

Tussenwoning

Verdieping

0

Lift

❌ Nee

🏠 Vertrekken

Keuken 1x (6.87m²)
Berging 1x (7m²)
Slaapkamer 3x (33.48m²)
Woonkamer 1x (26.2m²)

💰 Prijsopbouw

Niet subsidiabele servicekosten €23,47

📍 Locatie

Kaart laden...

🚉

OV

5 min lopen naar station

🏬

Winkels

2 min lopen

🏫

Scholen

Meerdere binnen 1km

🌳

Park

10 min lopen

✅ Selectiecriteria

Je inkomen is niet hoger dan € 51537
Je inkomen is niet hoger dan € 56910
Er geldt een minimuminkomen
Meld je aan