Terug Wethouder Gerssenlaan 93
Wethouder Gerssenlaan 93 3454BD De Meern

Wethouder Gerssenlaan 93
3454BD De Meern, De Meern-Zuid

€961,30

Per maand

Interesse in dit type woning?

Ontvang direct bericht als er nieuwe woningen beschikbaar komen die bij uw woonwensen passen.

Meld je aan voor woningalerts

Gratis en vrijblijvend

Historische informatie

Deze huurwoning was beschikbaar voor reacties van 08-04-2026 tot 15-04-2026. Deze woning is niet meer beschikbaar voor nieuwe reacties.

🏠

74.75m²

Woonoppervlakte

🛏️

4

Kamers

Leegstand

Status

🌟

A

Energielabel

Deze eengezinswoning ligt in De Meern. Vleuten-De Meern is een van de 10 woonwijken van Utrecht. Het bestaat naast de oude woonkernen Vleuten en De Meern uit Haarzuilens, Rijnenburg, Oudenrijn, Vleuterweide en Veldhuizen. Samen met woonwijk Leidsche Rijn vormt Vleuten–De Meern het stadsdeel ten westen van het Amsterdam-Rijnkanaal.
De naam van dit stadsdeel is ook Leidsche Rijn.

Indeling

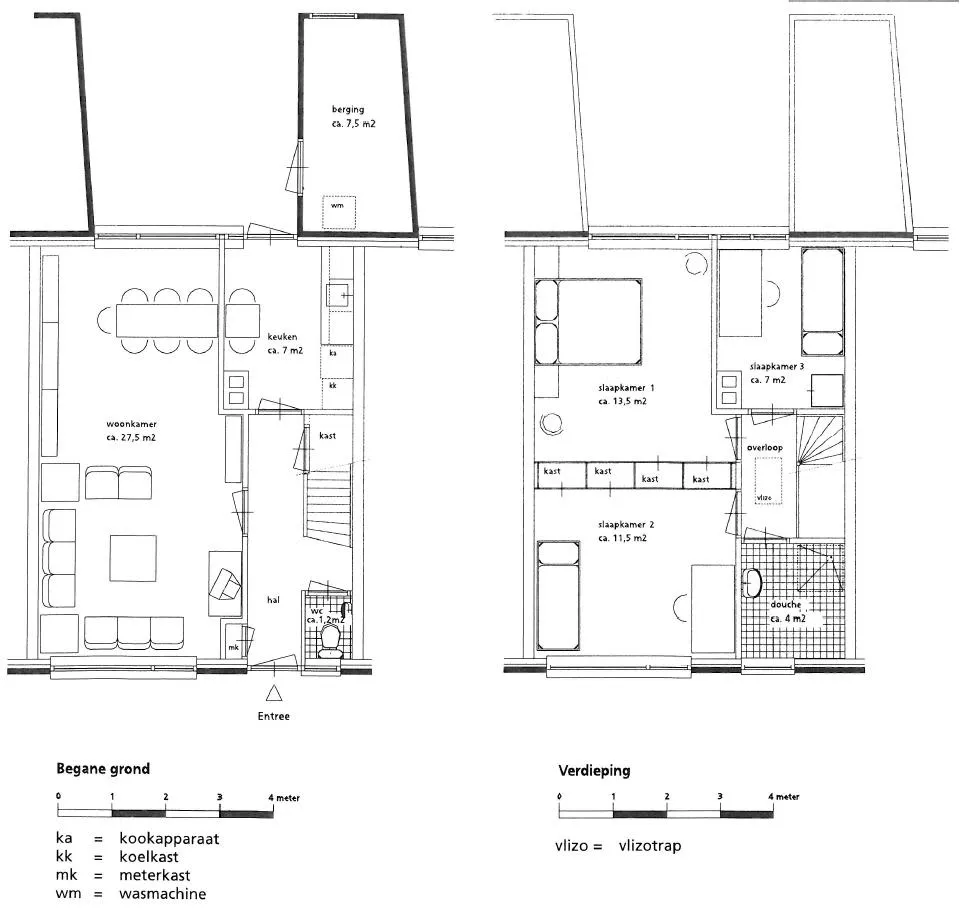
U komt de woning binnen in de hal. Vanuit de hal heeft u toegang tot het toilet, de woonkamer en de afgesloten keuken. Ook kunt u hier de trap op naar de eerste verdieping. In de keuken zit de deur naar de achtertuin, gelegen op het Westen. 

De woning heeft 3 slaapkamers en een vlizotrap naar zolder. 

Bijzonderheden op een rij:

  • Afgesloten keuken;
  • Koken op gas en elektrisch (2 fase Perilex);
  • Zonnepanelen; 
  • Vlizo naar zolder;
  • Aparte berging;
  • Wasmachine aansluiting in de keuken;
  • Geen overnames; 

    Deze woning beschikt over een (ruime) tuin. De huurder is verantwoordelijk voor het onderhoud hiervan volgens de richtlijnen van het tuinenbeleid van Cazas Wonen.

Heeft u interesse en wilt u de woning bezichtigen?

  • De eerste 10 geselecteerde kandidaten ontvangen een mailbericht van WoningNet om de woning te gaan bezichtigen.
  • U kunt de woning bekijken met maximaal 2 personen
  • Houdt u er dan rekening mee dat er een bezichtiging plaats zal vinden op 21 april 2026. 
  • Let op: de woning is onder voorbehoud per genoemde datum beschikbaar
  • U kunt nog tot 1 dag voor bezichtiging bericht krijgen dat u de volgende dag hierbij aanwezig dient te zijn.
  • Als u niet zelf naar de bezichtiging kunt komen, kunt u iemand anders machtigen. Geef via verhuur@cazaswonen.nl door wie namens u de woning komt bezichtigen.
  • Bij de bezichtiging is een verhuurmakelaar aanwezig.

📋 Specificaties

Type

Woonruimte

Soort woning

Tussenwoning

Verdieping

0

Lift

❌ Nee

🏠 Vertrekken

Doucheruimte 1x (3.97m²)
Berging 1x (7m²)
Keuken 1x (7m²)
Slaapkamer 3x (33.85m²)
Woonkamer 1x (26.9m²)

💰 Prijsopbouw

Niet subsidiabele servicekosten €28,37

📍 Locatie

Kaart laden...

🚉

OV

5 min lopen naar station

🏬

Winkels

2 min lopen

🏫

Scholen

Meerdere binnen 1km

🌳

Park

10 min lopen

✅ Selectiecriteria

Je inkomen is niet hoger dan € 51537
Je inkomen is niet hoger dan € 56910
Er geldt een minimuminkomen
Meld je aan