Horizon 9 3454SC De Meern

Horizon 9
3454SC De Meern, De Meern-Noord

€736,89

Per maand

Interesse in dit type woning?

Ontvang direct bericht als er nieuwe woningen beschikbaar komen die bij uw woonwensen passen.

Meld je aan voor woningalerts

Gratis en vrijblijvend

Historische informatie

Deze huurwoning was beschikbaar voor reacties van 02-01-2026 tot 09-01-2026. Deze woning is niet meer beschikbaar voor nieuwe reacties.

🏠

48m²

Woonoppervlakte

🛏️

2

Kamers

Leegstand

Status

🌟

A

Energielabel

Dit appartement ligt in De Meern. Vleuten-De Meern is een van de 10 woonwijken van Utrecht. Het bestaat naast de oude woonkernen Vleuten en De Meern uit Haarzuilens, Rijnenburg, Oudenrijn, Vleuterweide en Veldhuizen. Samen met woonwijk Leidsche Rijn vormt Vleuten–De Meern het stadsdeel ten westen van het Amsterdam-Rijnkanaal. De naam van dit stadsdeel is ook Leidsche Rijn.

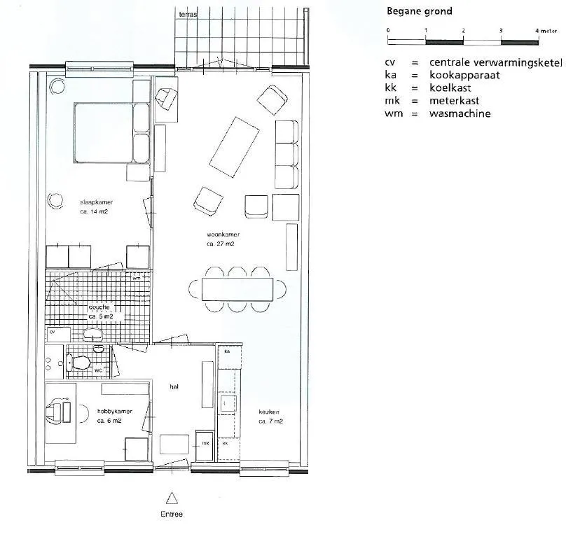
Het appartement is gelegen op de begane grond. Via de hal van de woning heeft u toegang tot de badkamer, het aparte toilet, hobbykamer en de woonkamer met open keuken. Via de woonkamer en de badkamer is de slaapkamer te bereiken.

Bijzonderheden op een rij:

  • Open keuken;
  • Koken elektrisch = 2 fase perilex;
  • Wasmachineaansluiting in de badkamer;
  • Zonnepanelen;
  • Aparte berging.

 

Heeft u interesse en wilt u de woning bezichtigen? 

  • De eerste 5 geselecteerde kandidaten ontvangen een mailbericht van WoningNet om de woning te gaan bezichtigen.  
  • U kunt de woning bekijken met maximaal 2 personen.  
  • Houdt u er dan rekening mee dat er een bezichtiging plaats zal vinden op 14 januari 2026. 
  • Let op: de woning is onder voorbehoud per genoemde datum beschikbaar. 
  • U kunt nog tot 1 dag voor bezichtiging bericht krijgen dat u de volgende dag hierbij aanwezig dient te zijn.
  • Als u niet zelf naar de bezichtiging kunt komen, kunt u iemand anders machtigen. Geef via verhuur@cazaswonen.nl door wie namens u de woning komt bezichtigen.  
  • Bij de bezichtiging is een verhuurmakelaar aanwezig.

📋 Specificaties

Type

Woonruimte

Soort woning

Benedenwoning

Verdieping

0

Lift

❌ Nee

🏠 Vertrekken

Keuken 1x (6.88m²)
Slaapkamer 1x (14m²)
Woonkamer 1x (27.12m²)

💰 Prijsopbouw

Subsidiabele servicekosten €0,00
Niet subsidiabele servicekosten €23,87

📍 Locatie

Kaart laden...

🚉

OV

5 min lopen naar station

🏬

Winkels

2 min lopen

🏫

Scholen

Meerdere binnen 1km

🌳

Park

10 min lopen

✅ Selectiecriteria

Je inkomen is niet hoger dan € 51537
Je inkomen is niet hoger dan € 56910
Meld je aan