Melkmeisjeslaan 35 3454WT De Meern

Melkmeisjeslaan 35
3454WT De Meern, De Meern-Zuid

€496,85

Per maand

Interesse in dit type woning?

Ontvang direct bericht als er nieuwe woningen beschikbaar komen die bij uw woonwensen passen.

Meld je aan voor woningalerts

Gratis en vrijblijvend

Historische informatie

Deze huurwoning was beschikbaar voor reacties van 04-04-2025 tot 11-04-2025. Deze woning is niet meer beschikbaar voor nieuwe reacties.

🏠

49.45m²

Woonoppervlakte

🛏️

3

Kamers

Verhuurd

Status

🌟

B

Energielabel

Vleuten-De Meern is een van de 10 woonwijken van Utrecht. Het bestaat naast de oude woonkernen Vleuten en De Meern uit Haarzuilens, Rijnenburg, Oudenrijn, Vleuterweide en Veldhuizen. Samen met woonwijk Leidsche Rijn vormt Vleuten–De Meern het stadsdeel ten westen van het Amsterdam-Rijnkanaal. De naam van dit stadsdeel is ook Leidsche Rijn.

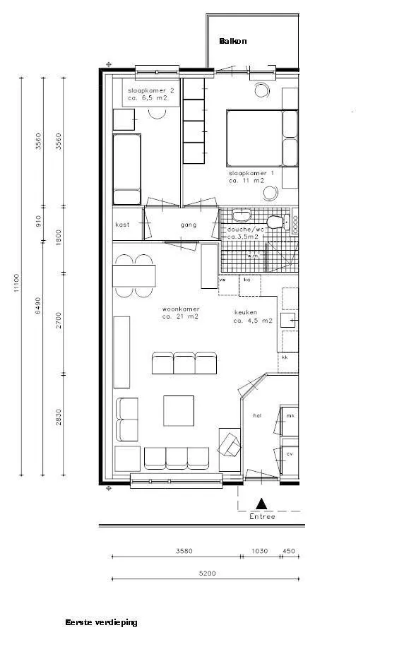
Indeling

De woning is gelegen op de eerste etage en er bevind zich geen lift. U kunt de woning bereiken vanuit een open algemene toegang. U komt de woning binnen in de hal. Vanuit de hal heeft u toegang tot de woonkamer met open keuken. Via de woonkamer bereikt u de tweede hal welke toegang biedt tot de 2 slaapkamers en de badkamer. De badkamer is voorzien van een douche, toilet en wastafel. Er is geen buitenruimte aanwezig. 

Bijzonderheden op een rij:

  • Koken op gas 
  • Open keuken
  • Wasmachine aansluiting in de badkamer; 
  • Aparte berging;
  • Plattegrond is gespiegeld en afwijkend;
  • Voorzieningen nabije omgeving: speeltuin;
  • Diverse overnames; laminaatvloer in de gehele woning, verlengd aanrechtblad, onderkastje, gaskooktoestel en oven. 


H
eeft u interesse en wilt u de woning bezichtigen?

  • De eerste 5 geselecteerde kandidaten ontvangen een mailbericht van WoningNet om de woning te gaan bezichtigen.
  • U kunt de woning bekijken met maximaal 2 personen
  • Houdt u er dan rekening mee dat er een bezichtiging plaats zal vinden op 16 april 2025. 
  • Let op: de woning is onder voorbehoud per genoemde datum beschikbaar
  • U kunt nog tot 1 dag voor bezichtiging bericht krijgen dat u de volgende dag hierbij aanwezig dient te zijn.
  • Als u niet zelf naar de bezichtiging kunt komen, kunt u iemand anders machtigen. Geef via verhuur@cazaswonen.nl door wie namens u de woning komt bezichtigen.
  • Bij de bezichtiging is een verhuurmakelaar aanwezig.

📋 Specificaties

Type

Woonruimte

Soort woning

Galerijflat

Verdieping

1

Lift

❌ Nee

🏠 Vertrekken

Doucheruimte 1x (3.65m²)
Keuken 1x (4.37m²)
Slaapkamer 2x (17.3m²)
Berging 1x (6.69m²)
Woonkamer 1x (21.09m²)

💰 Prijsopbouw

Subsidiabele servicekosten €12,25
Niet subsidiabele servicekosten €7,40

📍 Locatie

Kaart laden...

🚉

OV

5 min lopen naar station

🏬

Winkels

2 min lopen

🏫

Scholen

Meerdere binnen 1km

🌳

Park

10 min lopen

✅ Selectiecriteria

Maximum inkomen eenpersoonshuishouden
Maximum inkomen meerpersoonshuishouden
Meld je aan