
Evertsenstraat 1
3454XV De Meern, De Meern-Zuid
€928,44
Per maand
Interesse in dit type woning?
Ontvang direct bericht als er nieuwe woningen beschikbaar komen die bij uw woonwensen passen.
Meld je aan voor woningalertsGratis en vrijblijvend
Historische informatie
Deze huurwoning was beschikbaar voor reacties van 02-10-2025 tot 09-10-2025. Deze woning is niet meer beschikbaar voor nieuwe reacties.
88.27m²
Woonoppervlakte
5
Kamers
Leegstand
Status
A
Energielabel
Omschrijving
Aangeboden door Cazas WonenVleuten-De Meern is een van de 10 woonwijken van Utrecht. Het bestaat naast de oude woonkernen Vleuten en De Meern uit Haarzuilens, Rijnenburg, Oudenrijn, Vleuterweide en Veldhuizen. Samen met woonwijk Leidsche Rijn vormt Vleuten–De Meern het stadsdeel ten westen van het Amsterdam-Rijnkanaal. De naam van dit stadsdeel is ook Leidsche Rijn.
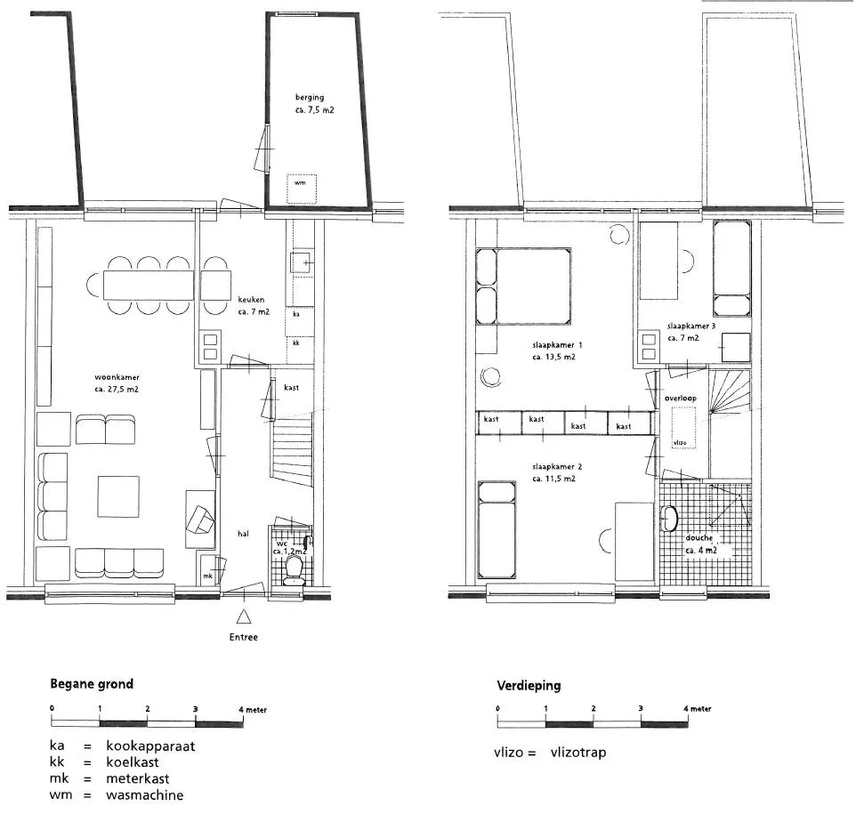
Indeling
Benedenverdieping:
In de hal treft u het toilet aan en de trap naar de eerste etage. Via de hal is de woonkamer en de gesloten keuken te bereiken. Vanuit de keuken is de toegang naar de achtertuin. In de tuin is een aparte berging aanwezig.
Eerste etage:
Via de overloop boven komt u bij de drie slaapkamers en de badkamer. De badkamer is voorzien van een tweede toilet.
Tweede etage/zolder:
Via een vaste trap bereikt u de zolder. Hier bevindt zich de vierde slaapkamer.
Bijzonderheden op een rij
- Wijziging plattegrond: 4de slaapkamer bevindt zich op zolder;
- Gesloten keuken;
- Elektrisch koken (2-fase perilex);
- Aparte berging in de tuin;
- Tweede toilet in de badkamer;
- Vaste trap naar zolder;
- 8 zonnepanelen aanwezig;
- Woning is voorzien van nieuwe badkamer, keuken en toilet;
- Niet standaard voorziening: sierlijsten plafond woonkamer;
- De naastgelegen garage behoort niet tot de woning.
Deze woning beschikt over een (ruime) tuin. De huurder is verantwoordelijk voor het onderhoud hiervan volgens de richtlijnen van het tuinenbeleid van Cazas Wonen.
Heeft u interesse en wilt u de woning bezichtigen?
- De eerste 7 geselecteerde kandidaten ontvangen een mailbericht van WoningNet om de woning te gaan bezichtigen.
- U kunt de woning bekijken met maximaal 2 personen.
- Houdt u er dan rekening mee dat er een bezichtiging plaats zal vinden op 15 oktober 2025.
- Let op: de woning is onder voorbehoud per genoemde datum beschikbaar.
- U kunt nog tot 1 dag voor bezichtiging bericht krijgen dat u de volgende dag hierbij aanwezig dient te zijn.
- Als u niet zelf naar de bezichtiging kunt komen, kunt u iemand anders machtigen. Geef via verhuur@cazaswonen.nl door wie namens u de woning komt bezichtigen.
- Bij de bezichtiging is een verhuurmakelaar aanwezig.
📋 Specificaties
Type
Woonruimte
Soort woning
Hoekwoning
Verdieping
0
Lift
❌ Nee
🏠 Vertrekken
💰 Prijsopbouw
📍 Locatie
OV
5 min lopen naar station
Winkels
2 min lopen
Scholen
Meerdere binnen 1km
Park
10 min lopen